21.5万円

1LDK

種別 マンション

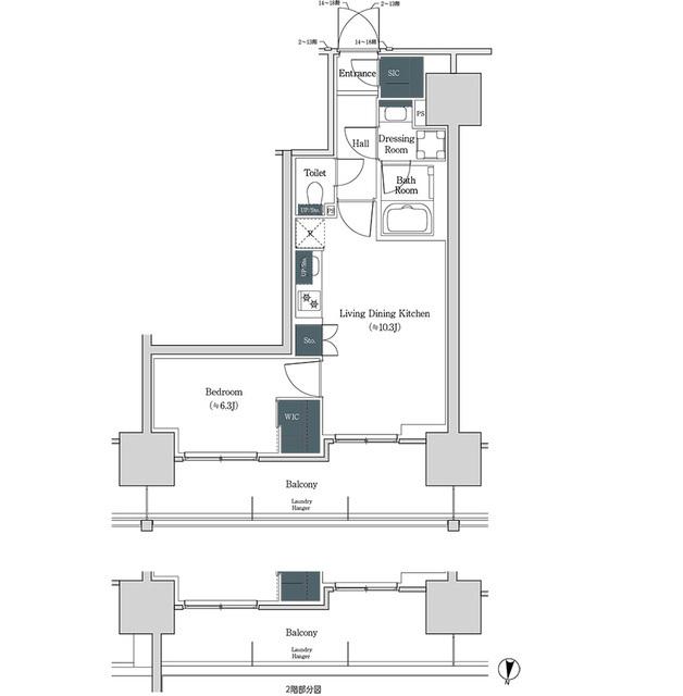
専有面積 39.87㎡

ブルックサイドレジデンス木場(834)

おすすめポイント

おすすめ
ポイント

写真:物件の写真
写真:その他物件の写真01
NoImage
NoImage

物件概要

築年月 2026年3月
構造 鉄筋コンクリート造
所在階 18階建ての8階
向き
バルコニー面積 11.00㎡
駐車場 なし
入居可能日 2026年3月18日予定
賃貸借の種類 普通賃貸借
契約期間 2年
共益費・管理費 20,000円
敷金 21.5万円
礼金 -
保証金 -
償却金 -
更新料 更新後賃料:1ヶ月
保証料等 要加入
保証会社補足 初回保証委託料(最低20,000円):月額賃料等の50%、2年目以降:10,000円/年、決済手数料300円(税込)/月
取引態様 媒介
情報更新日 2026年2月14日
次回更新予定日 2026年2月22日

※現状と異なる場合は、現状を優先させていただきます。取引態様の欄に「媒介」と表示された物件は「仲介物件」です。ご成約の際には仲介手数料を申し受けます。

ピタットハウス新宿西口店TEL:03-5909-5601