前へ
次へ
前へ
次へ
マンション

KOCITY88

NEW
14 万円
共益費 9,000
14万円
14万円
間取り
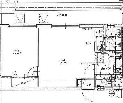
1LDK
専有面積
38.27㎡
所在階
7階建ての6階
向き
北東
  • アイコン: 住所 神奈川県横浜市神奈川区広台太田町
  • アイコン: 交通 JR横浜線 「東神奈川駅」 徒歩8分 / JR京浜東北・根岸線 「東神奈川駅」 徒歩8分 / 京急本線 「京急東神奈川駅」 徒歩9分
簡単無料
アイコン: お電話 0037-6001-05692
IP電話ご利用のお客様 : 045-264-3311
ピタットハウス
桜木町店
point!
東神奈川駅徒歩8分の1LDKおすすめ貸マンションです!
2021年04月築!38.27㎡の便利なJR横浜線沿線!
お気軽にお問い合わせください!
簡単無料
お気軽にお問い合わせください!
物件情報・周辺環境・契約手続きについてなどお気軽にお問い合わせください。

設備・条件

建物・立地
  • 外壁タイル張り
  • エレベータ
  • 宅配ボックス
  • 都市ガス
  • 都市ガス給湯
通信
  • CATV
セキュリティ
  • ピッキング対策キー
  • ダブルロックドア
部屋設備
  • フローリング
  • バルコニー
  • 室内洗濯機置場
  • 下駄箱
  • クローゼット
  • 収納スペース
  • 全居室フローリング
冷暖房
  • エアコン
キッチン
  • システムキッチン
  • ガスコンロ(2口)
  • グリル
バス・トイレ
  • バス・トイレ別
  • 浴室乾燥機
  • 追い焚き風呂
  • 洗髪洗面化粧台
  • 独立洗面台
  • 温水洗浄便座
  • シャワー
  • オートバス
  • トイレ
  • 洗面台

物件概要

物件種別

部屋種別 マンション
建物名称 KOCITY88
所在地 神奈川県横浜市神奈川区広台太田町 MAP
築年月 2021年4月 階数 7階建ての6階
建物構造 鉄筋コンクリート造 総戸数 -
間取り 1LDK(洋6帖) 専有面積 38.27㎡
向き 北東 バルコニー面積 -
その他 -

費用

賃料 14万円 初期費用の確認をする 初期費用の確認をする 共益費 9,000円
礼金 14万円 敷金 14万円
保証金 - 償却金 14.0万円(解約時)
その他一時金 鍵交換代等:18000円
その他月額費用 -
住宅保険 要加入(2年18000円)
保証会社 必須
保証会社補足 加入要 保証会社:興和アシスト、初回保証料:賃料等合計の50%、2年目以降:保証委託料1万円/年
更新料 更新後賃料:1ヶ月 更新事務手数料 -

契約条件

貸家契約区分 普通賃貸借 契約期間 2年
入居可能日 相談 空室状況を確認をする 空室状況を確認をする 引渡時期相談内容 -
フリーレント -
クレジットカード決済 初期費用クレジット決済可

駐車場

駐車場 なし 駐車場について質問する 駐車場について質問する
駐車場契約形態 -
駐車場備考 -
バイク置き場 なし
駐輪場 有り 330円/月

備考

その他 宅配BOX完備で不在がちな方にも、荷物を受取れる便利設備! システムキッチンなど収納等の室内設備充実! 当店なら各カード会社で初期費用クレジット決済可能!
関連リンク
取引態様 媒介 管理コード 4721093
情報登録(更新)日 2025年11月28日 次回更新予定日 2025年12月6日
備考 めやす賃料:

めやす賃料とは賃料、共益費・管理費、敷引金、更新料を含み、賃料等条件の改定がないものと仮定して4年間賃借した場合(定期借家の場合は契約期間)の1ヶ月当たりの金額です。

※敷引金は、敷金の償却、保証金の償却など、預かった金額から必ず引くものをいいます。
※めやす賃料は、消費者に適切な情報を提供するための表示であり事業者に一時金を推奨するものではありません。
※めやす賃料は、実際の総支払額と異なる場合があります。詳しくは不動産会社にご確認ください。  

周辺環境

  • 横浜市立二谷小学校:447m
    横浜市立二谷小学校:447m
  • 横浜市立栗田谷中学校:730m
    横浜市立栗田谷中学校:730m
  • 反町ひかり保育園:141m
    反町ひかり保育園:141m
  • 横浜市神奈川区役所:155m
    横浜市神奈川区役所:155m
  • 横浜西神奈川郵便局:342m
    横浜西神奈川郵便局:342m
  • 幸ケ谷公園:833m
    幸ケ谷公園:833m
  • そごう横浜店:1752m
    そごう横浜店:1752m
ショッピング施設
そごう横浜店
1752m
役所
横浜市神奈川区役所
155m
郵便局
横浜西神奈川郵便局
342m
公園
幸ケ谷公園
833m
幼稚園
反町ひかり保育園
141m
小学校
横浜市立二谷小学校
447m
中学校
横浜市立栗田谷中学校
730m

取扱店舗

ピタットハウス桜木町店
ピタットハウス桜木町店
株式会社関東住宅流通
交通
JR京浜東北根岸線 桜木町駅 徒歩2分みなとみらい線 みなとみらい駅 徒歩14分みなとみらい線 馬車道駅 徒歩7分
営業時間
09:30 〜 18:30
定休日
毎週水曜日・夏季休暇(8/13~8/17)
お電話 0037-6001-05692 無料
メール お問い合わせ
  • お問い合わせ区分

  • 内見希望日時

    第一希望

    第二希望

  • お名前

    全角
  • ご希望の連絡方法

    メールアドレス

    電話番号

    半角
    半角
  • その他ご希望等

ピタットハウスの個人情報の取り扱いについて

ピタットハウスでは信頼されるサイトを目指して、物件情報の精度向上に努めています。
掲載物件に誤りがある場合は こちら からご連絡ください。現状と異なる場合は、現状を優先させていただきます。
取引態様の欄に「媒介」と表示された物件は「仲介物件」です。ご成約の際には仲介手数料を申し受けます。

その他の取扱店舗

不動産会社毎に募集条件等が異なる場合があります。詳細は各店の物件詳細ページにてご確認ください。
交通
センター南駅 出口1から徒歩約3分センター北駅 出口1から徒歩約16分都筑ふれあいの丘駅 出口1から徒歩約17分
営業時間
09:30 〜 18:30
定休日
毎週火曜日・水曜日・夏季休暇(8/12~8/17)
お電話 0037-6001-09445 無料

生活情報

横浜市の暮らしデータ

横浜市は、神奈川県の東端に位置し、東は東京湾、北は川崎市、西は町田市・大和市・藤沢市、南は鎌倉市・逗子市・横須賀市に接しています。横浜市の中心部から東京都心部までは、約30kmです。国を代表する国際貿易港である横浜港を基盤として、首都圏の中核都市としての役割を担っています。総面積は、約435km2で、これは東京23区の約7割にあたります。

基本データ

市区役所所在地 横浜市中区本町6-50-10
公式ホームページURL https://www.city.yokohama.lg.jp/
総人口 3,777,491人
人口増減率(2015年/2020年) 101.4%
横浜市の生活情報を詳しくみる

地域のおすすめ情報ブログ

一覧を見る

東神奈川駅近隣の駅から探す

横浜市神奈川区の近隣エリアから探す

FAQ

  • A. KOCITY88(JQ4721093_1)の内見は、見学予約でお問い合わせいただくか、直接桜木町店(0037-6001-05692)までご連絡ください。
  • A. 可能です。KOCITY88(JQ4721093_1)周辺の情報は、ピタットハウスの地域情報ブログ「街ピタ」住みたい街の暮らしデータをご活用ください。
  • A. KOCITY88(JQ4721093_1)の費用は、こちらよりお問い合わせいただくか、直接桜木町店(0037-6001-05692)までご連絡ください。
  • A. はい、可能です。賃貸希望物件リクエストをご利用ください。KOCITY88(JQ4721093_1)に似た物件も合わせてご紹介させていただきます。