2,880万円
4LDK
種別 戸建て
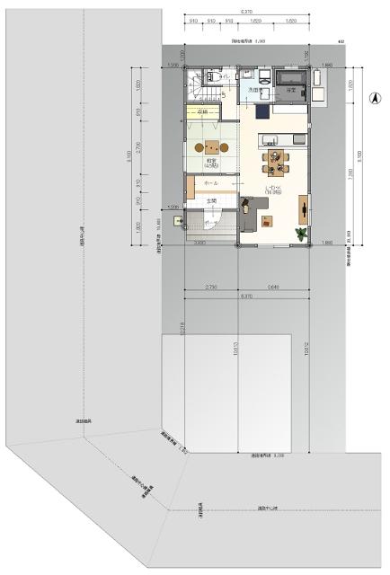
建物面積 108.47㎡(壁芯)
おすすめ
ポイント
【永江町A Plus】4LDK 駐車場6台可
ZEH水準住宅、吹付断熱、ハイブリッドサッシ、1F無垢床
LDKエアコン1台付、オール電化、駐車場6台可
和光産業オリジナル仕様【Plus】です。
| 築年月 | 2026年6月 |
|---|---|
| 構造 | 木造 |
| 階数 | 2階建て |
| 土地面積 | 196.67㎡ (59.49坪) |
| 駐車スペース | 駐車場あり( 6台) |
| 都市計画 | 市街化区域 |
| 用途地域 | 第一種住居地域 |
| 建蔽率/容積率 | 60% / 200% |
| 地目 | 宅地 |
| 区画整理 | - |
| 接道 | 南側6.0m公道に9.9m接道/西側6.0m公道に19.6m接道 |
| 私道 | なし |
| 権利 | 所有権 |
| 借地権 | - |
| 現況 | 未完成 |
| 引渡時期 | 相談 |
| 引渡条件 | |
| 取引態様 | 売主 |
| 管理コード | AAX400126 |
設備・特記
《設備》:陽当り良好/BELS/省エネ基準適合/上水道/複層ガラス/下水道/クローゼット/庭/浴室暖房/IHコンロ/追い焚き風呂/3口コンロ/浴室乾燥機/照明器具/24時間換気システム/駐車場3台分/エアコン/南向き/LDK15畳以上/オール電化/閑静な住宅街/2面採光/浄水器/全居室収納/建築確認完了検査済証/地盤調査書有/トイレ2ヶ所/スマートキー/温水洗浄便座/洗髪洗面化粧台/食器洗浄乾燥機/床下収納/ウォークインクローゼット/IT重説対応物件/TVモニター付きインターホン/瑕疵保険(国交省指定)保証利用可
《物件の特徴》:《和光産業》4LDK【永江町A Plus】【ZEH水準住宅、吹付断熱、ハイブリッド、1F無垢床】
備考
《その他制限》:景観法 水防法 宅地造成等規制法
《その他》:施工会社((株)和光産業) / 販売戸数:1戸 / 備考:【激動】の時代、住まいに4つの価値をプラスし、【感動】を提供します / 地勢:平坦 / 国土法届出:不要
《建築確認番号》:12504650
※詳細については、Webサイトにてご確認ください。現状と異なる場合は、現状を優先させていただきます。
※取引態様の欄に「媒介」と表示された物件は「仲介物件」です。ご成約の際には仲介手数料を申し受けます。
情報更新日|2025年11月11日
次回更新予定|2025年11月25日