32,980万円
3LDK
種別 マンション
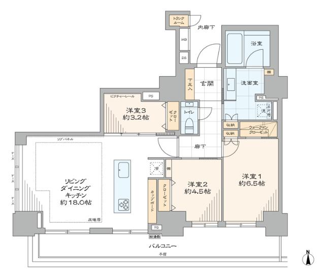
専有面積 78.56㎡(壁芯)
おすすめ
ポイント
32階高層階ワイドバルコニーからの眺めは格別です!!
ペット飼育可能(小型犬・猫計2匹まで、細則有)
コンシェルジュサービスが充実しています!!
トランクルーム0.58㎡使用可能です!!
| 築年月 | 2019年2月 |
|---|---|
| 構造 | 鉄筋コンクリート造 |
| 所在階 | 地下1階・地上36階建ての32階 |
| 総戸数 | 361戸 |
| 向き | 南西 |
| バルコニー面積 | 18.75㎡ |
| 駐車場 | - |
| 施工会社 | 三井住友建設(株) |
| 管理会社 | (株)東京建物アメニティサポート |
| 管理形態 | 全部委託(日勤) |
| 権利 | 所有権 |
| 借地権 | - |
| 現況 | 空室(入居歴有) |
| 引渡時期 | 相談 |
| 引渡条件 | 現況渡し |
| 管理費 | 29,000円/月 |
| 修繕積立金 | 15,170円/月 |
| 取引態様 | 媒介 |
| 管理コード | ABY400006 |
設備・特記
《設備》:陽当り良好/リノベーション/床暖房/内装リフォーム/外観タイル張り/室内洗濯機置場/インターネット対応/クローゼット/アイランドキッチン/浴室暖房/システムキッチン/追い焚き風呂/3口コンロ/浴室乾燥機/タンクレストイレ/バルコニー/自走式駐車場/LDK18畳以上/24時間換気システム/角部屋/都市ガス/エアコン/前面棟無/ペット相談可/常時ゴミ出し可能/南向き/閑静な住宅街/浄水器/全居室収納/スマートキー/温水洗浄便座/ウォークインクローゼット/エレベーター2基以上/フロントサービス/エレベータ/全居室フローリング/モニタ付オートロック/宅配BOX/給湯/TVモニター付きインターホン/オートロック/防犯カメラ
《物件の特徴》:-
備考
《その他》:施工会社(三井住友建設(株)) / 管理会社((株)東京建物アメニティサポート) / 販売戸数:1戸 / 備考:・ペット可(小型犬猫計2匹迄、細則有)・事務所使用不可・インターネット(㈱つなぐネット)・CATV・ 固都税271,134円(R7年度概算)※トランクルーム0.58㎡含む※駐車場W1850×H1750×L5050以下/W1850×H2100×L5050以下 / 用途地域:商業地域 / 国土法届出:不要
※詳細については、Webサイトにてご確認ください。現状と異なる場合は、現状を優先させていただきます。
※取引態様の欄に「媒介」と表示された物件は「仲介物件」です。ご成約の際には仲介手数料を申し受けます。
情報更新日|2025年11月19日
次回更新予定|2025年12月3日