3,390万円
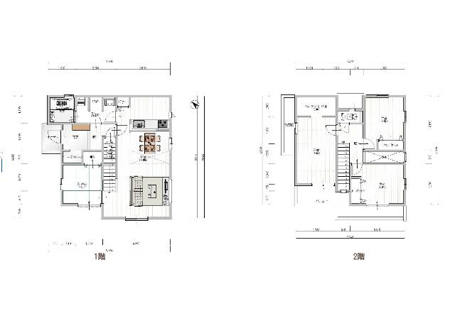
4LDK
種別 戸建て
建物面積 103.09㎡(壁芯)
おすすめ
ポイント
| 築年月 | 2026年9月 |
|---|---|
| 構造 | 木造 |
| 階数 | 2階建て |
| 土地面積 | 174.07㎡ (52.65坪) |
| 駐車スペース | 駐車場あり( 3台) |
| 都市計画 | 市街化区域 |
| 用途地域 | 第一種低層住居専用地域 |
| 建蔽率/容積率 | 50% / 100% |
| 地目 | 宅地 |
| 区画整理 | - |
| 接道 | |
| 私道 | なし |
| 権利 | 所有権 |
| 借地権 | - |
| 現況 | 未着工 |
| 引渡時期 | 2026年9月下旬予定 |
| 引渡条件 | |
| 取引態様 | 媒介 |
| 管理コード | ACC400232 |
設備・特記
《設備》:2階建/制震構造/BELS/省エネ基準適合/上水道/電気/耐震構造/前道6m以上/下水道/複層ガラス/カウンターキッチン/クローゼット/浴室に窓/庭/浴室暖房/システムキッチン/オートバス/追い焚き風呂/3口コンロ/浴室乾燥機/バルコニー/シャッター雨戸/24時間換気システム/駐車場2台分/火災警報器(報知機)/ダウンライト/南面バルコニー/都市ガス/長期優良住宅/省エネ給湯器/周辺交通量少なめ/性能評価書取得/設計住宅性能評価書/閑静な住宅街/省エネルギー対策/浄水器/全居室収納/トイレ2ヶ所/温水洗浄便座/洗髪洗面化粧台/床下収納/洗面所独立/シューズインクローゼット/バス1坪以上/シューズボックス/ウォークインクローゼット/TVモニター付きインターホン/ダブルロックドア
《物件の特徴》:3/23迄!ピタットハウス木更津金田店はフリープランに強い!実績多数!建売価格で夢の注文住宅を実現!
備考
《その他》:販売戸数:2戸 / 地勢:平坦 / 国土法届出:不要
《建築確認番号》:第HPA-26-08951-1号
※詳細については、Webサイトにてご確認ください。現状と異なる場合は、現状を優先させていただきます。
※取引態様の欄に「媒介」と表示された物件は「仲介物件」です。ご成約の際には仲介手数料を申し受けます。
情報更新日|2026年1月31日
次回更新予定|2026年2月14日