2,480万円
3LDK
種別 戸建て
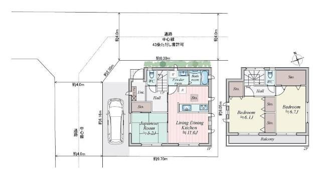
建物面積 78.25㎡(壁芯)
おすすめ
ポイント
【写真充実】リフォーム済なので即生活が可能です!
安心な建物保証付き!購入後も安心して生活いただけます♪
空き室なのでいつでもご見学可能です!
どにようなことでもお気軽にお問い合わせ下さい!
| 築年月 | 2017年8月 |
|---|---|
| 構造 | 木造 |
| 階数 | 2階建て |
| 土地面積 | 76.63㎡ (23.18坪) |
| 駐車スペース | 駐車場あり( 1台) |
| 都市計画 | 市街化区域 |
| 用途地域 | 第一種低層住居専用地域 |
| 建蔽率/容積率 | 60% / 150% |
| 地目 | 宅地 |
| 区画整理 | - |
| 接道 | 北側4.0m私道に8.3m接道/西側4.0m私道に6.0m接道 |
| 私道 | 私道負担面積:41.62㎡(持分:1/1) |
| 権利 | 所有権 |
| 借地権 | - |
| 現況 | 空室(入居歴有) |
| 引渡時期 | 即時 |
| 引渡条件 | 現況渡し |
| 取引態様 | 媒介 |
| 管理コード | ACF400887 |
設備・特記
《設備》:2階建/陽当り良好/2沿線以上利用可/上水道/電気/内装リフォーム/複層ガラス/下水道/浴室に窓/カウンターキッチン/クローゼット/浴室暖房/システムキッチン/オートバス/追い焚き風呂/3口コンロ/浴室乾燥機/シャッター雨戸/火災警報器(報知機)/都市ガス/省エネ給湯器/整形地/和室/南向き/全室2面採光/閑静な住宅街/浄水器/全居室収納/トイレ2ヶ所/温水洗浄便座/洗髪洗面化粧台/床下収納/シューズボックス/ウォークインクローゼット/瑕疵保証付(不動産会社独自)/TVモニター付きインターホン/全室南向き/ダブルロックドア/角地
《物件の特徴》:-
備考
《その他》:備考:ご希望いただければ無料送迎行わせていただきます!現地待ち合わせ・当日見学大歓迎です♪「とりあえず見学」・「ローン相談」…お気軽にお問い合わせ下さい! / 地勢:平坦 / 国土法届出:不要
《特定事項》:建築時・再建築時、建築基準法43条2項第2号の許可要(建築審査会の同意が必要)
※詳細については、Webサイトにてご確認ください。現状と異なる場合は、現状を優先させていただきます。
※取引態様の欄に「媒介」と表示された物件は「仲介物件」です。ご成約の際には仲介手数料を申し受けます。
情報更新日|2025年11月14日
次回更新予定|2025年11月28日