3,390万円
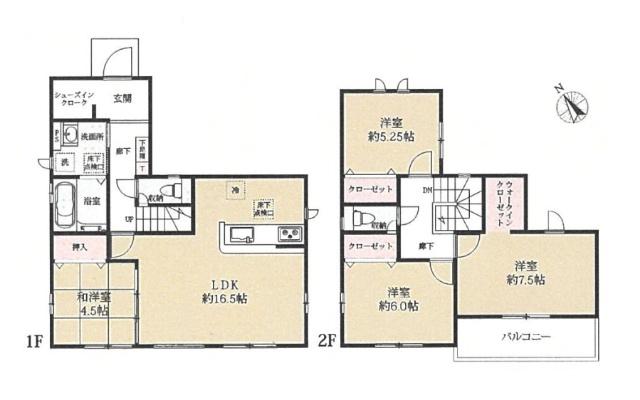
4LDK
種別 戸建て
建物面積 99.99㎡(壁芯)
おすすめ
ポイント
◆住宅性能表示制度7項目最高等級取得予定の高性能住宅
◆長期優良住宅認定物件で将来まで安心
◆敷地40坪×並列2台駐車のゆとりある敷地
◆対面式キッチンで家族とのコミュニケーションが取りやすい
| 築年月 | 2025年12月 |
|---|---|
| 構造 | 木造 |
| 階数 | 2階建て |
| 土地面積 | 132.55㎡ (40.09坪) |
| 駐車スペース | 駐車場あり( 2台) |
| 都市計画 | 市街化区域 |
| 用途地域 | 第一種低層住居専用地域 |
| 建蔽率/容積率 | 50% / 100% |
| 地目 | 宅地 |
| 区画整理 | - |
| 接道 | 北側5.9m私道に接道 |
| 私道 | なし |
| 権利 | 所有権 |
| 借地権 | - |
| 現況 | 未完成 |
| 引渡時期 | 2025年12月下旬予定 |
| 引渡条件 | |
| 取引態様 | 媒介 |
| 管理コード | ACF400900 |
設備・特記
《設備》:2階建/上水道/電気/耐震構造/フラット35S適合・利用可/下水道/浴室に窓/カウンターキッチン/クローゼット/システムキッチン/追い焚き風呂/3口コンロ/浴室乾燥機/バルコニー/24時間換気システム/駐車場2台分/火災警報器(報知機)/南面バルコニー/都市ガス/長期優良住宅/整形地/性能評価書取得/設計住宅性能評価書/LDK15畳以上/全室2面採光/閑静な住宅街/2面採光/浄水器/全居室収納/トイレ2ヶ所/温水洗浄便座/洗髪洗面化粧台/床下収納/シューズインクローゼット/バス1坪以上/シューズボックス/ウォークインクローゼット/TVモニター付きインターホン
《物件の特徴》:-
備考
《その他制限》:22条区域・絶対高さ10m・宅地造成等工事規制区域・日影規制・景観法・都市再生特別措置法
《建築確認番号》:第HPA-25-08665-1号
※詳細については、Webサイトにてご確認ください。現状と異なる場合は、現状を優先させていただきます。
※取引態様の欄に「媒介」と表示された物件は「仲介物件」です。ご成約の際には仲介手数料を申し受けます。
情報更新日|2025年11月15日
次回更新予定|2025年11月29日