3,799万円
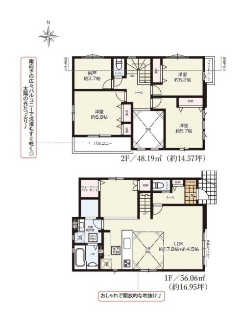
3LDK
種別 戸建て
建物面積 104.25㎡(壁芯)
おすすめ
ポイント
◆四街道駅徒歩18分、通勤通学も快適
◆スーパー・ドラッグストアなど買い物施設が徒歩圏内
◆敷地40坪×並列2台駐車のゆとりある区画
◆納戸つきで季節物や大型荷物も安心
| 築年月 | 2026年1月 |
|---|---|
| 構造 | 木造 |
| 階数 | 2階建て |
| 土地面積 | 132.41㎡ (40.05坪) |
| 駐車スペース | 駐車場あり( 2台) |
| 都市計画 | 市街化区域 |
| 用途地域 | 第一種低層住居専用地域 |
| 建蔽率/容積率 | 50% / 100% |
| 地目 | 畑 |
| 区画整理 | - |
| 接道 | 東側8.1m公道に接道 |
| 私道 | なし |
| 権利 | 所有権 |
| 借地権 | - |
| 現況 | 未完成 |
| 引渡時期 | 2026年2月下旬予定 |
| 引渡条件 | |
| 取引態様 | 媒介 |
| 管理コード | ACF400928 |
設備・特記
《設備》:2階建/BELS/省エネ基準適合/上水道/電気/前道6m以上/スーパー徒歩10分以内/フラット35S適合・利用可/下水道/浴室に窓/カウンターキッチン/クローゼット/システムキッチン/追い焚き風呂/3口コンロ/浴室乾燥機/LDK20畳以上/バルコニー/シャッター雨戸/24時間換気システム/駐車場2台分/火災警報器(報知機)/バルコニー2面以上/都市ガス/リビング階段/全室2面採光/閑静な住宅街/2面採光/納戸/浄水器/トイレ2ヶ所/温水洗浄便座/洗髪洗面化粧台/食器洗浄乾燥機/床下収納/シューズボックス/ウォークインクローゼット/全居室フローリング/TVモニター付きインターホン
《物件の特徴》:-
備考
《建築確認番号》:第25UDI1W建07068号
※詳細については、Webサイトにてご確認ください。現状と異なる場合は、現状を優先させていただきます。
※取引態様の欄に「媒介」と表示された物件は「仲介物件」です。ご成約の際には仲介手数料を申し受けます。
情報更新日|2025年11月24日
次回更新予定|2025年12月9日