1,888万円
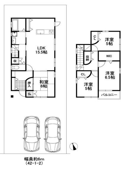
4LDK
種別 戸建て
建物面積 102.04㎡(壁芯)
おすすめ
ポイント
■リフォーム済み物件の為お引き渡し後すぐにご入居いただけます
■保育所・小学校徒歩10分圏内にあり子育て世代にもおすすめ
■駐車場区画:屋根付2台・青空2〜3台■オール電化
| 築年月 | 2012年1月 |
|---|---|
| 構造 | 木造 |
| 階数 | 2階建て |
| 土地面積 | 211.25㎡ (63.90坪) |
| 駐車スペース | 駐車場あり( 3台) |
| 都市計画 | 市街化調整区域 |
| 用途地域 | 無指定 |
| 建蔽率/容積率 | 50% / 100% |
| 地目 | 宅地 |
| 区画整理 | - |
| 接道 | 南側6.0m私道に9.0m接道 |
| 私道 | なし |
| 権利 | 所有権 |
| 借地権 | - |
| 現況 | 空室(入居歴有) |
| 引渡時期 | 即時 |
| 引渡条件 | |
| 取引態様 | 媒介 |
| 管理コード | ACI400176 |
設備・特記
《設備》:上水道/電気/前道6m以上/南向き/内装リフォーム/LDK15畳以上/オール電化/小学校徒歩10分以内/クローゼット/全居室収納/駐車場3台分/南面バルコニー
《物件の特徴》:■リフォーム済み物件の為お引き渡し後すぐにご入居いただけます
備考
《その他》:販売戸数:1戸 / 備考:■リフォーム内容:クロス張替・畳表替・IHコンロ交換・インターホン交換・ウォシュレット交換・ハウスクリーニング■固定資産税:(R7)81,270円 / 国土法届出:不要
※詳細については、Webサイトにてご確認ください。現状と異なる場合は、現状を優先させていただきます。
※取引態様の欄に「媒介」と表示された物件は「仲介物件」です。ご成約の際には仲介手数料を申し受けます。
情報更新日|2026年5月7日
次回更新予定|2026年5月27日