5,490万円
4LDK
種別 戸建て
建物面積 109.45㎡(内法)
おすすめ
ポイント
西武多摩湖線「一橋学園」駅徒歩10分、通勤通学にも便利な立地♪
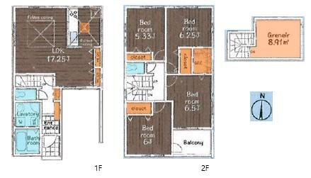
パントリーにもなるキッチン収納を備えた広々としたLDK♪
季節用品の保管など多目的に活用できるグルニエ8.91㎡♪
南向きのワイドなバルコニー♪たっぷりの陽光が届く住まい♪
築年月 | 2025年7月 |
---|---|
構造 | 木造 |
階数 | 2階建て |
土地面積 | 84.22㎡ (25.47坪) |
駐車スペース | 駐車場あり( 1台) |
都市計画 | 市街化区域 |
用途地域 | 第一種低層住居専用地域 |
建蔽率/容積率 | 60%/40% / 200%/ 80% |
地目 | 宅地 |
区画整理 | - |
接道 | 南側5.4m公道に7.4m接道/西側5.4m公道に10.9m接道 |
私道 | なし |
権利 | 所有権 |
借地権 | - |
現況 | 空室(入居歴無) |
引渡時期 | 即時 |
引渡条件 | |
取引態様 | 媒介 |
管理コード | ACL400954 |
設備・特記
《設備》:陽当り良好/BELS/省エネ基準適合/上水道/フラット35S適合・利用可/小学校徒歩10分以内/下水道/複層ガラス/カウンターキッチン/クローゼット/浴室暖房/システムキッチン/追い焚き風呂/3口コンロ/浴室乾燥機/24時間換気システム/ビルトインガレージ/南面バルコニー/都市ガス/長期優良住宅/性能評価書取得/南向き/設計住宅性能評価書/全室2面採光/閑静な住宅街/LDK15畳以上/パントリー/浄水器/全居室収納/スマートキー/トイレ2ヶ所/温水洗浄便座/洗髪洗面化粧台/床下収納/グルニエ/バス1坪以上/ウォークインクローゼット/全居室フローリング/TVモニター付きインターホン/角地
《物件の特徴》:西武多摩湖線「一橋学園」駅徒歩10分、通勤通学にも便利な立地♪
備考
《その他》:備考:※敷地面積:車庫面積12.46㎡含む / 地勢:平坦 / 国土法届出:不要
《建築確認番号》:第24UDI1W建06427号
※詳細については、Webサイトにてご確認ください。現状と異なる場合は、現状を優先させていただきます。
※取引態様の欄に「媒介」と表示された物件は「仲介物件」です。ご成約の際には仲介手数料を申し受けます。
情報更新日|2025年10月17日
次回更新予定|2025年11月3日