1,072万円
79.42坪
種別 土地
土地面積 262.57㎡
おすすめ
ポイント
平家建築に最適!インター、商業施設すぐ近く 70坪超の宅地
建築条件付き:30社を超える建築業者からお選び頂けます
| 都市計画 | 非線引区域 |
|---|---|
| 用途地域 | 無指定 |
| 建蔽率/容積率 | 60% / 200% |
| 地目 | 宅地 |
| 最適用途 | 指定なし |
| 区画整理 | - |
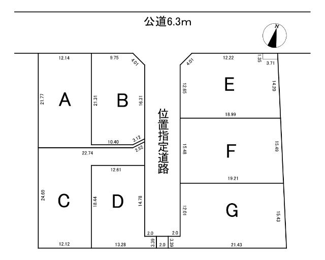
| 接道 | 位置指定道路:あり |
| 私道 | なし |
| 権利 | 所有権 |
| 借地権 | - |
| 現況 | 更地 |
| 引渡時期 | 2026年2月上旬予定 |
| 引渡条件 | |
| 取引態様 | 媒介 |
| 管理コード | ACW400062 |
設備・特記
《設備》:閑静な住宅街
《物件の特徴》:-
備考
《その他費用》:別途、下水道受益者負担金㎡あたり500円。水道メーター負担金あり。
《その他》:販売戸数( 7区画)
※詳細については、Webサイトにてご確認ください。現状と異なる場合は、現状を優先させていただきます。
※取引態様の欄に「媒介」と表示された物件は「仲介物件」です。ご成約の際には仲介手数料を申し受けます。
情報更新日|2026年1月13日
次回更新予定|2026年1月31日