780万円
用途:アパート
種別 一棟売り
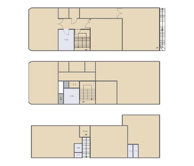
建物面積 476.31㎡(壁芯)
おすすめ
ポイント
自社利用・倉庫・リノベーションなど、多用途にご検討いただけます
現況渡しにつき、自由な用途での活用が可能です。
| 築年月 | 1978年8月 |
|---|---|
| 構造 | 鉄骨造 |
| 階数 | 4階建て |
| 総戸数 | - |
| 土地面積 | 294.39㎡ (89.05坪) |
| 駐車スペース | 駐車場あり( 3台) |
| 都市計画 | 市街化区域 |
| 用途地域 | 商業地域 |
| 建蔽率/容積率 | 80% / 400% |
| 地目 | 宅地 |
| 区画整理 | - |
| 接道 | 北側12.0m公道に8.7m接道 |
| 私道 | なし |
| 権利 | 所有権 |
| 借地権 | - |
| 現況 | 賃貸中 |
| 引渡時期 | 即時 |
| 引渡条件 | 現況渡し/相談 |
| 取引態様 | 媒介 |
| 管理コード | AEJ400104 |
設備・特記
《設備》:トイレ2ヶ所/男女別トイレ
《物件の特徴》:-
備考
《その他制限》:準防火地域
《その他》:販売戸数:1戸 / 地勢:平坦 / 国土法届出:不要
※詳細については、Webサイトにてご確認ください。現状と異なる場合は、現状を優先させていただきます。
※取引態様の欄に「媒介」と表示された物件は「仲介物件」です。ご成約の際には仲介手数料を申し受けます。
情報更新日|2025年11月11日
次回更新予定|2025年11月26日