3,075万円
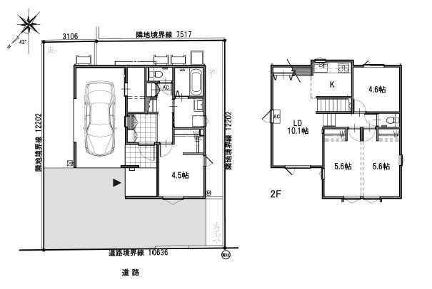
4LDK
種別 戸建て
建物面積 83.22㎡(壁芯)
おすすめ
ポイント
人気の長根エリア!エコキュート搭載のオール電化新築建売住宅
4月完成!4LDK+ガレージ付住宅です!
| 築年月 | 2026年4月 |
|---|---|
| 構造 | 木造 |
| 階数 | 2階建て |
| 土地面積 | 129.81㎡ (39.26坪) |
| 駐車スペース | 駐車場あり( 2台) |
| 都市計画 | 市街化区域 |
| 用途地域 | 第二種中高層住居専用地域 |
| 建蔽率/容積率 | 60% / 200% |
| 地目 | 宅地 |
| 区画整理 | - |
| 接道 | 北側6.0m公道に10.0m接道 |
| 私道 | なし |
| 権利 | 所有権 |
| 借地権 | - |
| 現況 | 未完成 |
| 引渡時期 | 相談 |
| 引渡条件 | 現況渡し |
| 取引態様 | 媒介 |
| 管理コード | AEJ400170 |
設備・特記
《設備》:2階建/上水道/整形地/複層ガラス/下水道/ガレージ/クローゼット/納戸/トイレ2ヶ所/温水洗浄便座/洗髪洗面化粧台/食器洗浄乾燥機/IHコンロ/追い焚き風呂/浴室乾燥機/24時間換気システム/全居室フローリング/EV車充電設備/駐車場2台分/TVモニター付きインターホン/高気密高断熱住宅/2×4工法
《物件の特徴》:-
備考
《その他》:施工会社((株)ジェイホーム) / 販売戸数:1戸 / 地勢:平坦 / 国土法届出:不要
《建築確認番号》:第363号
※詳細については、Webサイトにてご確認ください。現状と異なる場合は、現状を優先させていただきます。
※取引態様の欄に「媒介」と表示された物件は「仲介物件」です。ご成約の際には仲介手数料を申し受けます。
情報更新日|2026年3月28日
次回更新予定|2026年4月13日