5,280万円
2SLDK
種別 戸建て
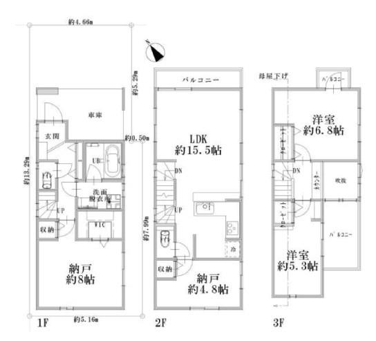
建物面積 97.61㎡(壁芯)
おすすめ
ポイント
内装リフォーム済。外壁塗装工事完了後のお引き渡し!
| 築年月 | 2018年5月 |
|---|---|
| 構造 | 木造 |
| 階数 | 3階建て |
| 土地面積 | 66.02㎡ (19.97坪) |
| 駐車スペース | 駐車場あり( 1台) |
| 都市計画 | 市街化区域 |
| 用途地域 | 第一種中高層住居専用地域 |
| 建蔽率/容積率 | 60% / 200% |
| 地目 | 宅地 |
| 区画整理 | - |
| 接道 | |
| 私道 | なし |
| 権利 | 所有権 |
| 借地権 | - |
| 現況 | 空室(入居歴有) |
| 引渡時期 | 相談 |
| 引渡条件 | |
| 取引態様 | 媒介 |
| 管理コード | AFJ400387 |
設備・特記
《設備》:都市ガス/上水道/吹抜/LDK15畳以上/内外装リフォーム/下水道/納戸/トイレ2ヶ所/温水洗浄便座/食器洗浄乾燥機/システムキッチン/バルコニー/全居室フローリング
《物件の特徴》:-
備考
※詳細については、Webサイトにてご確認ください。現状と異なる場合は、現状を優先させていただきます。
※取引態様の欄に「媒介」と表示された物件は「仲介物件」です。ご成約の際には仲介手数料を申し受けます。
情報更新日|2026年5月24日
次回更新予定|2026年6月13日