3,280万円
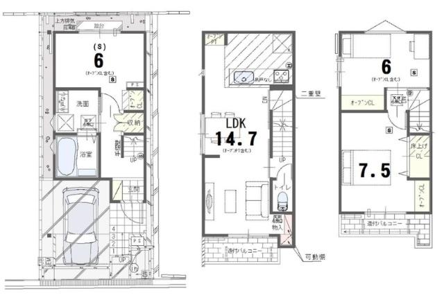
3LDK
種別 戸建て
建物面積 79.61㎡(壁芯)
おすすめ
ポイント
耐震等級3+制震ダンパー付きで地震にも安心の新築戸建です
リビングを見渡せるカウンターキッチン 便利なパントリー有り
シャワー、洗濯、キッチンまで家じゅうまるごとナノバブル水です
完成済みにつきいつでも内覧可能です
| 築年月 | 2025年8月 |
|---|---|
| 構造 | 木造 |
| 階数 | 3階建て |
| 土地面積 | 48.53㎡ (14.68坪) |
| 駐車スペース | 駐車場あり( 1台) |
| 都市計画 | 市街化区域 |
| 用途地域 | 第一種中高層住居専用地域 |
| 建蔽率/容積率 | 60% / 200% |
| 地目 | 宅地 |
| 区画整理 | - |
| 接道 | 北側4.4mに4.5m接道 |
| 私道 | なし |
| 権利 | 所有権 |
| 借地権 | - |
| 現況 | 空室(入居歴無) |
| 引渡時期 | 即時 |
| 引渡条件 | 相談 |
| 取引態様 | 媒介 |
| 管理コード | AFL400033 |
設備・特記
《設備》:都市ガス/上水道/耐震構造/複層ガラス/下水道/カウンターキッチン/パントリー/浄水器/温水洗浄便座/浴室暖房/洗髪洗面化粧台/システムキッチン/オートバス/追い焚き風呂/3口コンロ/浴室乾燥機/バス1坪以上/24時間換気システム/TVモニター付きインターホン/バルコニー2面以上/ビルトインガレージ
《物件の特徴》:-
備考
《その他》:販売戸数:1戸 / 地勢:平坦 / 国土法届出:不要
《建築確認番号》:第R06確認建築IPEC70086号
※詳細については、Webサイトにてご確認ください。現状と異なる場合は、現状を優先させていただきます。
※取引態様の欄に「媒介」と表示された物件は「仲介物件」です。ご成約の際には仲介手数料を申し受けます。
情報更新日|2026年3月28日
次回更新予定|2026年4月13日