1,260万円
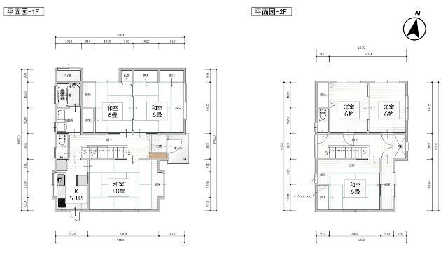
6K
種別 戸建て
建物面積 132.76㎡(壁芯)
おすすめ
ポイント
幅員6mの二方向道路に接する開放感のある角地!
6部屋ある居室は来客用やくつろぎの空間として利用可能!
大住小学校まで徒歩14分(1,078m)!
生活協同組合コープあきた茨島店まで車で17分(1,336m)!
| 築年月 | 1997年4月 |
|---|---|
| 構造 | 木造 |
| 階数 | 2階建て |
| 土地面積 | 221.37㎡ (66.96坪) |
| 駐車スペース | 駐車場あり( 2台) |
| 都市計画 | 市街化区域 |
| 用途地域 | 第一種低層住居専用地域 |
| 建蔽率/容積率 | 60% / 80% |
| 地目 | 宅地 |
| 区画整理 | - |
| 接道 | 北側6.0m公道に8.4m接道/東側6.0m公道に9.8m接道 |
| 私道 | なし |
| 権利 | 所有権 |
| 借地権 | - |
| 現況 | 居住中 |
| 引渡時期 | 相談 |
| 引渡条件 | 現況渡し |
| 取引態様 | 媒介 |
| 管理コード | AFQ400184 |
設備・特記
《設備》:都市ガス/エアコン/上水道/前道6m以上/下水道/クローゼット/トイレ2ヶ所/温水洗浄便座/洗髪洗面化粧台/3口コンロ/照明器具/駐車場2台分/角地
《物件の特徴》:4/4・5予約制OH開催!幅員6mの二方向道路に接する開放感のある角地!
備考
《その他制限》:景観法、秋田市中高層の建築に係る紛争の予防および調整の条例
《その他》:販売戸数:1戸 / 備考:・令和7年度固定資産税額 51,300円/年・指定変更可能な学校として、仁井田小学校まで徒歩24分(1,917m)、御野場中学校まで徒歩17分(1,338m) / 地勢:平坦 / 国土法届出:不要
※詳細については、Webサイトにてご確認ください。現状と異なる場合は、現状を優先させていただきます。
※取引態様の欄に「媒介」と表示された物件は「仲介物件」です。ご成約の際には仲介手数料を申し受けます。
情報更新日|2026年3月31日
次回更新予定|2026年4月17日