1,590万円
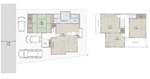
4LDK
種別 戸建て
建物面積 103.48㎡(壁芯)
おすすめ
ポイント
ファミリーに最適☆駐車場スペース3台♪フルリノベーション住宅!
| 築年月 | 1984年5月 |
|---|---|
| 構造 | 木造 |
| 階数 | 2階建て |
| 土地面積 | 125.59㎡ (37.99坪) |
| 駐車スペース | 駐車場あり( 3台) |
| 都市計画 | 市街化区域 |
| 用途地域 | 第一種住居地域 |
| 建蔽率/容積率 | 60% / 200% |
| 地目 | 宅地 |
| 区画整理 | - |
| 接道 | 西側公道に9.0m接道 |
| 私道 | なし |
| 権利 | 所有権 |
| 借地権 | - |
| 現況 | 空室(入居歴有) |
| 引渡時期 | 即時 |
| 引渡条件 | |
| 取引態様 | 媒介 |
| 管理コード | AFT400063 |
設備・特記
《設備》:プロパンガス/リノベーション/上水道/内装リフォーム/南向き/LDK15畳以上/内外装リフォーム/下水道/外装リフォーム/カウンターキッチン/クローゼット/トイレ2ヶ所/温水洗浄便座/洗髪洗面化粧台/システムキッチン/追い焚き風呂/3口コンロ/バス1坪以上/照明器具/TVモニター付きインターホン/駐車場3台分
《物件の特徴》:-
備考
《その他》:販売戸数:1戸 / 備考:瑕疵担保責任基準に適合/火災警報器等設置済 / 地勢:平坦 / 国土法届出:不要
※詳細については、Webサイトにてご確認ください。現状と異なる場合は、現状を優先させていただきます。
※取引態様の欄に「媒介」と表示された物件は「仲介物件」です。ご成約の際には仲介手数料を申し受けます。
情報更新日|2026年4月16日
次回更新予定|2026年5月10日