3,350万円
4LDK
種別 戸建て
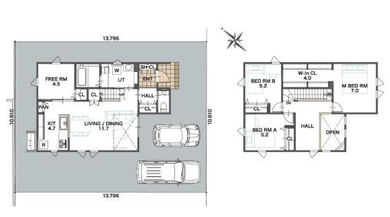
建物面積 102.27㎡(壁芯)
おすすめ
ポイント
| 築年月 | 2026年1月 |
|---|---|
| 構造 | 木造 |
| 階数 | 2階建て |
| 土地面積 | 150.51㎡ (45.52坪) |
| 駐車スペース | 駐車場あり( 2台) |
| 都市計画 | 市街化区域 |
| 用途地域 | 第一種低層住居専用地域 |
| 建蔽率/容積率 | 50% / 80% |
| 地目 | 宅地 |
| 区画整理 | - |
| 接道 | |
| 私道 | なし |
| 権利 | 所有権 |
| 借地権 | - |
| 現況 | 空室(入居歴無) |
| 引渡時期 | 相談 |
| 引渡条件 | |
| 取引態様 | 売主 |
| 管理コード | AGD400033 |
設備・特記
《設備》:2階建/上水道/電気/前道6m以上/フローリング/小学校徒歩10分以内/下水道/クローゼット/カウンターキッチン/システムキッチン/IHコンロ/3口コンロ/追い焚き風呂/照明器具/駐車場2台分/間接照明/ダウンライト/エアコン/前面棟無/リビング階段/整形地/LDK15畳以上/閑静な住宅街/全居室6畳以上/パントリー/納戸/全居室収納/温水洗浄便座/洗髪洗面化粧台/食器洗浄乾燥機/洗面所独立/バス1坪以上/ウォークインクローゼット/IT重説対応物件/全居室フローリング/TVモニター付きインターホン/平坦地
《物件の特徴》:-
備考
《その他》:販売戸数:1戸 / 国土法届出:不要
《建築確認番号》:第SKK20252233号
※詳細については、Webサイトにてご確認ください。現状と異なる場合は、現状を優先させていただきます。
※取引態様の欄に「媒介」と表示された物件は「仲介物件」です。ご成約の際には仲介手数料を申し受けます。
情報更新日|2026年4月5日
次回更新予定|2026年4月20日