3,990万円
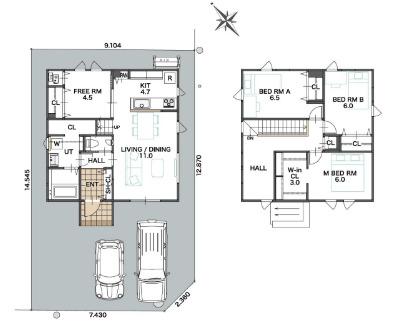
4LDK
種別 戸建て
建物面積 106.00㎡(壁芯)
おすすめ
ポイント
| 築年月 | 2025年10月 |
|---|---|
| 構造 | 木造 |
| 階数 | 2階建て |
| 土地面積 | 131.03㎡ (39.63坪) |
| 駐車スペース | 駐車場あり( 2台) |
| 都市計画 | 市街化区域 |
| 用途地域 | 第一種住居地域 |
| 建蔽率/容積率 | 60% / 200% |
| 地目 | 宅地 |
| 区画整理 | - |
| 接道 | |
| 私道 | なし |
| 権利 | 所有権 |
| 借地権 | - |
| 現況 | 空室(入居歴無) |
| 引渡時期 | 相談 |
| 引渡条件 | |
| 取引態様 | 売主 |
| 管理コード | AGD400036 |
設備・特記
《設備》:陽当り良好/土地50坪以上/通風良好/上水道/南道路/前道6m以上/フローリング/下水道/複層ガラス/クローゼット/カウンターキッチン/システムキッチン/3口コンロ/追い焚き風呂/照明器具/駐車場2台分/エアコン/前面棟無/リビング階段/整形地/南向き/吹抜/LDK15畳以上/閑静な住宅街/2面採光/全居室収納/建築確認完了検査済証/温水洗浄便座/洗髪洗面化粧台/食器洗浄乾燥機/洗面所独立/シューズインクローゼット/バス1坪以上/ウォークインクローゼット/全居室複層ガラスか複層サッシ/IT重説対応物件/全居室フローリング/東南向き/TVモニター付きインターホン/平坦地/角地
《物件の特徴》:-
備考
《その他》:販売戸数:1戸 / 地勢:平坦 / 国土法届出:不要
《建築確認番号》:第SKK20250235号
※詳細については、Webサイトにてご確認ください。現状と異なる場合は、現状を優先させていただきます。
※取引態様の欄に「媒介」と表示された物件は「仲介物件」です。ご成約の際には仲介手数料を申し受けます。
情報更新日|2026年4月5日
次回更新予定|2026年4月19日