250万円
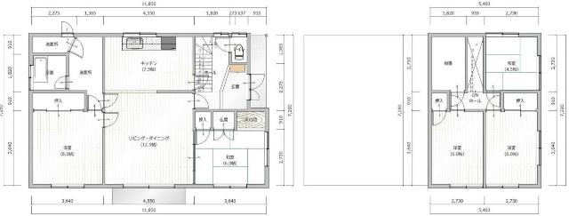
5SLDK
種別 戸建て
建物面積 119.88㎡(壁芯)
おすすめ
ポイント
				
					南側に広い敷地!駐車場にもお庭にも利用できて日当たりもよし!
					
				
				
				
				
			
 
		
	 
			 
			 
			| 築年月 | 1978年3月 | 
|---|---|
| 構造 | 木造 | 
| 階数 | 2階建て | 
| 土地面積 | 418.00㎡ (126.44坪) | 
| 駐車スペース | 駐車場あり( 2台) | 
| 都市計画 | 非線引区域 | 
| 用途地域 | 第一種低層住居専用地域 | 
| 建蔽率/容積率 | 40% / 60% | 
| 地目 | 宅地 | 
| 区画整理 | - | 
| 接道 | 東側14.5m公道に19.0m接道 | 
| 私道 | なし | 
| 権利 | 所有権 | 
| 借地権 | - | 
| 現況 | 空室(入居歴有) | 
| 引渡時期 | 即時 | 
| 引渡条件 | 現況渡し | 
| 取引態様 | 媒介 | 
| 管理コード | AGE400132 | 
設備・特記
						《設備》:融雪対策/陽当り良好/温水洗浄便座/洗髪洗面化粧台/BSアンテナ/南向き/バス1坪以上/駐車場3台分/庭10坪以上
						《物件の特徴》:南側に広い敷地!駐車場にもお庭にも利用できて日当たりもよし!
					
備考
						
							
						
						
						
						
						
						
							《その他》:施工会社(笹木産業(株)) / 地勢:平坦 / 国土法届出:不要
						
						
						
						
					
			※詳細については、Webサイトにてご確認ください。現状と異なる場合は、現状を優先させていただきます。
			※取引態様の欄に「媒介」と表示された物件は「仲介物件」です。ご成約の際には仲介手数料を申し受けます。
			情報更新日|2025年10月30日
			次回更新予定|2025年11月14日