3,200万円
3LDK
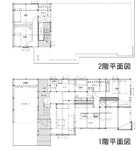
種別 戸建て
建物面積 153.52㎡(壁芯)
おすすめ
ポイント
砂川 フルリノベーション住宅です
1階は床暖房システム 無垢フローリング使用
| 築年月 | 2000年1月 |
|---|---|
| 構造 | 木造 |
| 階数 | 2階建て |
| 土地面積 | 124.95㎡ (37.79坪) |
| 駐車スペース | 駐車場あり( 2台) |
| 都市計画 | 非線引区域 |
| 用途地域 | 第一種住居地域 |
| 建蔽率/容積率 | 60% / 200% |
| 地目 | 宅地 |
| 区画整理 | - |
| 接道 | 西側に接道 |
| 私道 | なし |
| 権利 | 所有権 |
| 借地権 | - |
| 現況 | 空室(入居歴有) |
| 引渡時期 | 相談 |
| 引渡条件 | 相談 |
| 取引態様 | 媒介 |
| 管理コード | AGE400154 |
設備・特記
《設備》:リノベーション/電気/床暖房/内装リフォーム/内外装リフォーム/複層ガラス/下水道/外装リフォーム/カウンターキッチン/クローゼット/IHコンロ/3口コンロ/タンクレストイレ/照明器具/LDK18畳以上/高気密高断熱住宅/ビルトインガレージ/省エネ給湯器/吹抜/納戸/洗髪洗面化粧台/食器洗浄乾燥機/洗面所独立/バス1坪以上/出窓/全居室フローリング
《物件の特徴》:-
備考
《その他》:販売戸数:1戸 / 地勢:平坦 / 国土法届出:不要
《建築確認番号》:第0000号
※詳細については、Webサイトにてご確認ください。現状と異なる場合は、現状を優先させていただきます。
※取引態様の欄に「媒介」と表示された物件は「仲介物件」です。ご成約の際には仲介手数料を申し受けます。
情報更新日|2026年1月24日
次回更新予定|2026年2月8日