3,798万円
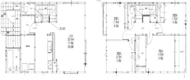
4LDK
種別 戸建て
建物面積 94.39㎡(壁芯)
おすすめ
ポイント
築年月 | 2025年6月 |
---|---|
構造 | 木造 |
階数 | 2階建て |
土地面積 | 119.33㎡ (36.09坪) |
駐車スペース | 駐車場あり( 2台) |
都市計画 | 市街化区域 |
用途地域 | 第一種低層住居専用地域 |
建蔽率/容積率 | / |
地目 | 宅地 |
区画整理 | - |
接道 | 北西側4.0m公道に接道 |
私道 | なし |
権利 | 所有権 |
借地権 | - |
現況 | 空室(入居歴無) |
引渡時期 | 相談 |
引渡条件 | |
取引態様 | 媒介 |
管理コード | AGR400020 |
設備・特記
《設備》:都市ガス/上水道/フラット35S適合・利用可/LDK15畳以上/複層ガラス/下水道/カウンターキッチン/クローゼット/建築確認完了検査済証/トイレ2ヶ所/温水洗浄便座/洗髪洗面化粧台/食器洗浄乾燥機/システムキッチン/追い焚き風呂/3口コンロ/シューズインクローゼット/浴室乾燥機/ウォークインクローゼット/電動シャッター/バルコニー/24時間換気システム/駐車場2台分/TVモニター付きインターホン
《物件の特徴》:-
備考
※詳細については、Webサイトにてご確認ください。現状と異なる場合は、現状を優先させていただきます。
※取引態様の欄に「媒介」と表示された物件は「仲介物件」です。ご成約の際には仲介手数料を申し受けます。
情報更新日|2025年10月5日
次回更新予定|2025年10月19日