780万円
4LDK
種別 戸建て
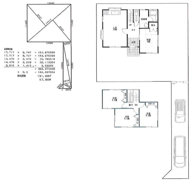
建物面積 81.98㎡(内法)
おすすめ
ポイント
車種により縦列3台駐車可能♪
福岡小学区の中古住宅!
| 築年月 | 1996年8月 |
|---|---|
| 構造 | 木造 |
| 階数 | 2階建て |
| 土地面積 | 191.68㎡ (57.98坪) |
| 駐車スペース | 駐車場あり( 2台) |
| 都市計画 | 非線引区域 |
| 用途地域 | 無指定 |
| 建蔽率/容積率 | 60% / 200% |
| 地目 | 宅地 |
| 区画整理 | - |
| 接道 | 東側5.0m公道に3.9m接道 |
| 私道 | なし |
| 権利 | 所有権 |
| 借地権 | - |
| 現況 | 空室(入居歴有) |
| 引渡時期 | 相談 |
| 引渡条件 | 現況渡し |
| 取引態様 | 媒介 |
| 管理コード | AGW400200 |
設備・特記
《設備》:プロパンガス/庭/上水道/浄化槽/駐車場2台分/全居室収納
《物件の特徴》:-
備考
《その他》:販売戸数:1戸 / 備考:境界非明示。現況でのお引渡し。1階和室に白蟻被害が有り、補修済。水道配管交換済み。 / 国土法届出:不要
※詳細については、Webサイトにてご確認ください。現状と異なる場合は、現状を優先させていただきます。
※取引態様の欄に「媒介」と表示された物件は「仲介物件」です。ご成約の際には仲介手数料を申し受けます。
情報更新日|2025年12月21日
次回更新予定|2026年1月4日