2,380万円
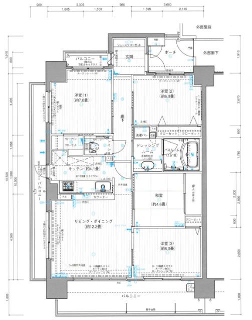
4LDK
種別 マンション
専有面積 87.98㎡(壁芯)
おすすめ
ポイント
サーパス日乃出町8階の角部屋
天気の良い日は富士山と富士の街並みが一望できます
各花火大会もお部屋から見ることができます。
近隣にスーパー新規オープン済み、病院なども多いです
| 築年月 | 2008年2月 |
|---|---|
| 構造 | 鉄筋コンクリート造 |
| 所在階 | 8階建ての8階 |
| 総戸数 | 48戸 |
| 向き | 南西 |
| バルコニー面積 | 24.47㎡ |
| 駐車場 | 駐車場有り 3,000円/月 |
| 施工会社 | (株)穴吹工務店 |
| 管理会社 | - |
| 管理形態 | 一部委託(日勤) |
| 権利 | 所有権 |
| 借地権 | - |
| 現況 | 空室(入居歴有) |
| 引渡時期 | 即時 |
| 引渡条件 | 相談 |
| 管理費 | 12,600円/月 |
| 修繕積立金 | 18,000円/月 |
| 取引態様 | 媒介 |
| 管理コード | AHC400657 |
設備・特記
《設備》:陽当り良好/インターネット対応/複層ガラス/カウンターキッチン/クローゼット/浴室暖房/システムキッチン/3口コンロ/浴室乾燥機/平面駐車場/バルコニー2面以上/角部屋/都市ガス/ペット相談可/楽器相談/2面採光/全居室収納/温水洗浄便座/洗髪洗面化粧台/バス1坪以上/エレベータ/全居室フローリング/宅配BOX/給湯/オートロック/高層階
《物件の特徴》:サーパス日乃出町8階の角部屋
備考
《その他月額費用》:警備料:640円/エスコートサービス:419円
《その他》:施工会社((株)穴吹工務店) / 販売戸数:1戸 / 備考:富士市日乃出町の高層角部屋4LDKマンション。8階から富士山や街並みが望め、陽当り良好・収納充実・近隣にスーパーなど生活利便も魅力です。 / 用途地域:第二種住居地域 / 地勢:平坦 / 国土法届出:不要
※詳細については、Webサイトにてご確認ください。現状と異なる場合は、現状を優先させていただきます。
※取引態様の欄に「媒介」と表示された物件は「仲介物件」です。ご成約の際には仲介手数料を申し受けます。
情報更新日|2026年2月27日
次回更新予定|2026年3月14日