3,520万円
2DK
種別 戸建て
建物面積 245.20㎡(壁芯)
おすすめ
ポイント
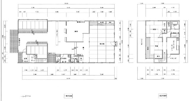
1階:店舗(カウンター、厨房、宴会場)、倉庫15.04坪付き
ウエルシア甲斐敷島店まで徒歩3分
敷島小学校まで徒歩3分
| 築年月 | 1991年3月 |
|---|---|
| 構造 | 木造 |
| 階数 | 2階建て |
| 土地面積 | 828.53㎡ (250.63坪) |
| 駐車スペース | - |
| 都市計画 | 市街化区域 |
| 用途地域 | 近隣商業地域/第一種住居地域 |
| 建蔽率/容積率 | 80%/60% / 200% |
| 地目 | 宅地 |
| 区画整理 | - |
| 接道 | |
| 私道 | なし |
| 権利 | 所有権 |
| 借地権 | - |
| 現況 | 空室(入居歴有) |
| 引渡時期 | 即時 |
| 引渡条件 | 現況渡し |
| 取引態様 | 代理 |
| 管理コード | AHL400158 |
設備・特記
《設備》:トイレ2ヶ所/プロパンガス/上水道/下水道
《物件の特徴》:1階:店舗(カウンター、厨房、宴会場)
備考
※詳細については、Webサイトにてご確認ください。現状と異なる場合は、現状を優先させていただきます。
※取引態様の欄に「媒介」と表示された物件は「仲介物件」です。ご成約の際には仲介手数料を申し受けます。
情報更新日|2026年4月16日
次回更新予定|2026年4月29日