3,580万円
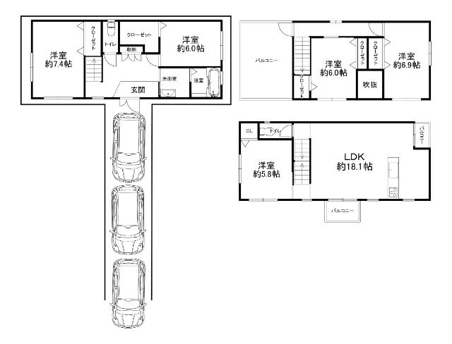
5LDK
種別 戸建て
建物面積 123.52㎡(壁芯)
おすすめ
ポイント
室内フルリフォーム!車3台駐車可能なお家!
| 築年月 | 2004年10月 |
|---|---|
| 構造 | 鉄骨造 |
| 階数 | 3階建て |
| 土地面積 | 98.21㎡ (29.70坪) |
| 駐車スペース | 駐車場あり( 2台) |
| 都市計画 | 市街化区域 |
| 用途地域 | 商業地域 |
| 建蔽率/容積率 | 80% / 400% |
| 地目 | 宅地 |
| 区画整理 | - |
| 接道 | 東側5.4m公道に接道 |
| 私道 | なし |
| 権利 | 所有権 |
| 借地権 | - |
| 現況 | 空室(入居歴有) |
| 引渡時期 | 即時 |
| 引渡条件 | |
| 取引態様 | 売主 |
| 管理コード | AJE400131 |
設備・特記
《設備》:-
《物件の特徴》:-
備考
《その他》:販売戸数:1戸 / 地勢:平坦 / 国土法届出:不要
※詳細については、Webサイトにてご確認ください。現状と異なる場合は、現状を優先させていただきます。
※取引態様の欄に「媒介」と表示された物件は「仲介物件」です。ご成約の際には仲介手数料を申し受けます。
情報更新日|2025年11月22日
次回更新予定|2025年12月11日