3,180万円
4LDK
種別 戸建て
建物面積 117.58㎡(壁芯)
おすすめ
ポイント
スタイリッシュな外観の新築分譲住宅!仲介手数料不要物件!
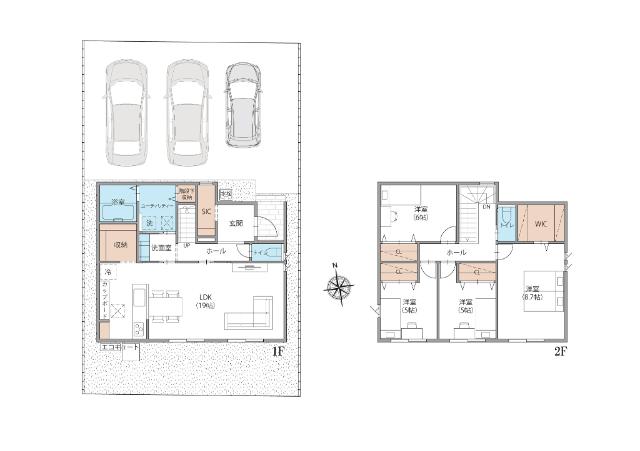
■全2棟販売中!■2026年1月完成予定!■カースペース3台分
■高椋小学校まで徒歩約4分!■ハニー新鮮館まで徒歩約9分!
■リビング19帖!■広々パントリー収納!■収納充実!
| 築年月 | 2026年1月 |
|---|---|
| 構造 | 木造 |
| 階数 | 2階建て |
| 土地面積 | 166.25㎡ (50.29坪) |
| 駐車スペース | 駐車場あり( 3台) |
| 都市計画 | 非線引区域 |
| 用途地域 | 第一種中高層住居専用地域 |
| 建蔽率/容積率 | 60% / 200% |
| 地目 | 宅地 |
| 区画整理 | - |
| 接道 | 北側6.0m公道に10.1m接道 |
| 私道 | なし |
| 権利 | 所有権 |
| 借地権 | - |
| 現況 | 未完成 |
| 引渡時期 | 2026年1月下旬予定 |
| 引渡条件 | 現況渡し |
| 取引態様 | 媒介 |
| 管理コード | AJL400365 |
設備・特記
《設備》:土地50坪以上/陽当り良好/通風良好/上水道/前道6m以上/スーパー徒歩10分以内/フラット35S適合・利用可/小学校徒歩10分以内/複層ガラス/下水道/カウンターキッチン/クローゼット/浴室暖房/システムキッチン/IHコンロ/追い焚き風呂/3口コンロ/浴室乾燥機/24時間換気システム/照明器具/LDK18畳以上/駐車場3台分/人感センサー付照明/火災警報器(報知機)/ダウンライト/エアコン/省エネ給湯器/周辺交通量少なめ/整形地/オール電化/閑静な住宅街/パントリー/浄水器/全居室収納/トイレ2ヶ所/温水洗浄便座/洗髪洗面化粧台/食器洗浄乾燥機/床下収納/シューズインクローゼット/バス1坪以上/シューズボックス/ウォークインクローゼット/全居室フローリング/TVモニター付きインターホン/ディンプルキー/外壁サイディング/ダブルロックドア
《物件の特徴》:-
備考
《その他》:販売戸数:2戸 / 地勢:平坦 / 国土法届出:不要
《建築確認番号》:第ERI-25023689号
※詳細については、Webサイトにてご確認ください。現状と異なる場合は、現状を優先させていただきます。
※取引態様の欄に「媒介」と表示された物件は「仲介物件」です。ご成約の際には仲介手数料を申し受けます。
情報更新日|2025年10月27日
次回更新予定|2025年11月10日