3,680万円
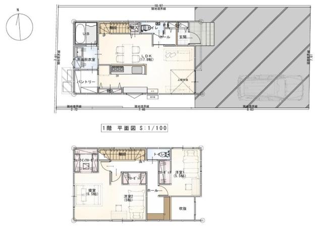
3LDK
種別 戸建て
建物面積 106.70㎡(壁芯)
おすすめ
ポイント
外断熱と軽くて柔軟性のある下地材で割れない塗り壁
★当社限定キャンペーン★弊社ご成約で仲介手数料全額OFF!
キッチンに立っていてもパントリー洗面脱衣室、LDKと回遊できる
雨の日に鍵を探すことなく、ドアノブに触れるだけで簡単開閉
| 築年月 | 2025年9月 |
|---|---|
| 構造 | 木造 |
| 階数 | 2階建て |
| 土地面積 | 144.65㎡ (43.75坪) |
| 駐車スペース | 駐車場あり( 1台) |
| 都市計画 | |
| 用途地域 | 第二種中高層住居専用地域 |
| 建蔽率/容積率 | 60% / 200% |
| 地目 | 宅地 |
| 区画整理 | - |
| 接道 | 東側7.7m公道に7.6m接道 |
| 私道 | なし |
| 権利 | 所有権 |
| 借地権 | - |
| 現況 | 空室(入居歴無) |
| 引渡時期 | 相談 |
| 引渡条件 | 現況渡し |
| 取引態様 | 媒介 |
| 管理コード | AJL400383 |
設備・特記
《設備》:制震構造/周辺交通量少なめ/整形地/閑静な住宅街/複層ガラス/下水道/カウンターキッチン/クローゼット/浄水器/全居室収納/洗髪洗面化粧台/温水洗浄便座/浴室暖房/システムキッチン/3口コンロ/追い焚き風呂/浴室乾燥機/バス1坪以上/24時間換気システム/TVモニター付きインターホン/火災警報器(報知機)/ダウンライト/ディンプルキー
《物件の特徴》:-
備考
《その他一時金》:上下水道負担金:770000円
《その他》:施工会社((株)リビングスペース) / 販売戸数:1戸 / 地勢:平坦 / 国土法届出:不要 / 設備保証:利用可
※詳細については、Webサイトにてご確認ください。現状と異なる場合は、現状を優先させていただきます。
※取引態様の欄に「媒介」と表示された物件は「仲介物件」です。ご成約の際には仲介手数料を申し受けます。
情報更新日|2025年11月23日
次回更新予定|2025年12月8日