3,140万円
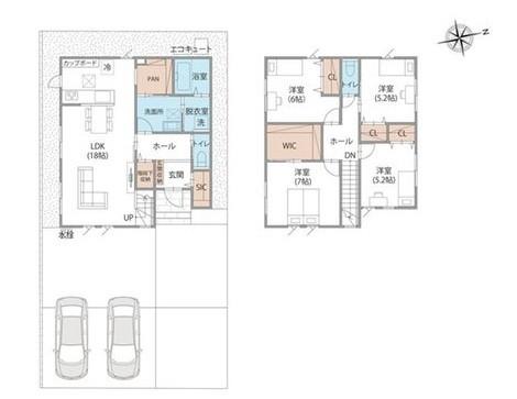
4LDK
種別 戸建て
建物面積 112.61㎡(壁芯)
おすすめ
ポイント
4号棟前面道路2面ともに6mで車移動がスムーズです!
仲介手数料不要です!
■IHクッキングヒーターはお手入れが簡単■カースペース並列2台
| 築年月 | 2025年7月 |
|---|---|
| 構造 | 木造 |
| 階数 | 2階建て |
| 土地面積 | 159.05㎡ (48.11坪) |
| 駐車スペース | 駐車場あり( 2台) |
| 都市計画 | |
| 用途地域 | 準工業地域 |
| 建蔽率/容積率 | 60% / 200% |
| 地目 | 宅地 |
| 区画整理 | - |
| 接道 | 東側6.0m公道に接道 |
| 私道 | なし |
| 権利 | 所有権 |
| 借地権 | - |
| 現況 | 空室(入居歴無) |
| 引渡時期 | 即時 |
| 引渡条件 | 現況渡し |
| 取引態様 | 媒介 |
| 管理コード | AJL400392 |
設備・特記
《設備》:陽当り良好/通風良好/上水道/前道6m以上/複層ガラス/下水道/カウンターキッチン/クローゼット/浴室暖房/システムキッチン/IHコンロ/追い焚き風呂/3口コンロ/浴室乾燥機/24時間換気システム/照明器具/LDK18畳以上/駐車場2台分/火災警報器(報知機)/ダウンライト/周辺交通量少なめ/整形地/閑静な住宅街/全居室収納/建築確認完了検査済証/温水洗浄便座/洗髪洗面化粧台/食器洗浄乾燥機/バス1坪以上/シューズボックス/ウォークインクローゼット/TVモニター付きインターホン/サンルーム/ディンプルキー/平坦地/外壁サイディング
《物件の特徴》:-
備考
《その他》:施工会社((株)ヤマダホームズ) / 販売戸数:1戸 / 地勢:平坦 / 国土法届出:不要
※詳細については、Webサイトにてご確認ください。現状と異なる場合は、現状を優先させていただきます。
※取引態様の欄に「媒介」と表示された物件は「仲介物件」です。ご成約の際には仲介手数料を申し受けます。
情報更新日|2026年3月31日
次回更新予定|2026年4月15日