3,780万円
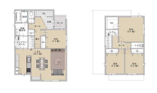
4LDK
種別 戸建て
建物面積 110.54㎡(壁芯)
おすすめ
ポイント
ペニンシュラキッチン採用の高品質住宅!仲介手数料不要物件です!
■高断熱・省エネルギーな『長期優良住宅』認定取得!
■アルビス森田店まで徒歩3分!生活に便利な立地!
■全3棟■2026年2月完成!■火災に強い省令準耐火構造!
| 築年月 | 2026年2月 |
|---|---|
| 構造 | 木造 |
| 階数 | 2階建て |
| 土地面積 | 201.96㎡ (61.09坪) |
| 駐車スペース | 駐車場あり( 3台) |
| 都市計画 | 市街化区域 |
| 用途地域 | 第一種住居地域 |
| 建蔽率/容積率 | 60% / 200% |
| 地目 | 宅地 |
| 区画整理 | - |
| 接道 | 北側6.0m公道に9.7m接道 |
| 私道 | なし |
| 権利 | 所有権 |
| 借地権 | - |
| 現況 | 空室(入居歴無) |
| 引渡時期 | 即時 |
| 引渡条件 | 現況渡し |
| 取引態様 | 媒介 |
| 管理コード | AJL400476 |
設備・特記
《設備》:土地50坪以上/上水道/前道6m以上/フラット35S適合・利用可/下水道/開発分譲地内/クローゼット/浴室暖房/追い焚き風呂/浴室乾燥機/照明器具/駐車場3台分/火災警報器(報知機)/人感センサー付照明/ダウンライト/周辺交通量少なめ/全居室収納/洗髪洗面化粧台/シューズインクローゼット/バス1坪以上/シューズボックス/ウォークインクローゼット/外壁サイディング/陽当り良好/通風良好/スーパー徒歩10分以内/複層ガラス/カウンターキッチン/庭/システムキッチン/IHコンロ/3口コンロ/24時間換気システム/LDK18畳以上/エアコン/長期優良住宅/省エネ給湯器/整形地/リビング階段/オール電化/閑静な住宅街/浄水器/建築確認完了検査済証/トイレ2ヶ所/温水洗浄便座/食器洗浄乾燥機/南庭/全居室フローリング/TVモニター付きインターホン/ディンプルキー/室内物干し/平坦地/ダブルロックドア
《物件の特徴》:-
備考
《その他》:販売戸数:3戸 / 地勢:平坦 / 国土法届出:不要
《建築確認番号》:第R7確0109号
※詳細については、Webサイトにてご確認ください。現状と異なる場合は、現状を優先させていただきます。
※取引態様の欄に「媒介」と表示された物件は「仲介物件」です。ご成約の際には仲介手数料を申し受けます。
情報更新日|2026年3月1日
次回更新予定|2026年3月15日