3,415万円
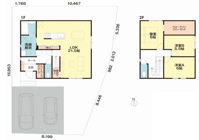
3LDK
種別 戸建て
建物面積 104.10㎡(壁芯)
おすすめ
ポイント
ZEH水準の省エネ性能を備えた分譲住宅
★当社限定キャンペーン★弊社ご成約で仲介手数料全額OFF!
■LDK21,5帖以上あり■エアコン2台付■
太白台小・津幡中学校区
| 築年月 | 2025年9月 |
|---|---|
| 構造 | 木造 |
| 階数 | 2階建て |
| 土地面積 | 171.48㎡ (51.87坪) |
| 駐車スペース | 駐車場あり( 2台) |
| 都市計画 | 非線引区域 |
| 用途地域 | 第一種住居地域 |
| 建蔽率/容積率 | 60% / 200% |
| 地目 | 宅地 |
| 区画整理 | - |
| 接道 | 南側8.2m公道に8.1m接道 |
| 私道 | なし |
| 権利 | 所有権 |
| 借地権 | - |
| 現況 | 空室(入居歴無) |
| 引渡時期 | 相談 |
| 引渡条件 | 現況渡し |
| 取引態様 | 媒介 |
| 管理コード | AJL400612 |
設備・特記
《設備》:制震構造/上水道/複層ガラス/下水道/カウンターキッチン/クローゼット/浴室暖房/システムキッチン/追い焚き風呂/3口コンロ/浴室乾燥機/LDK20畳以上/24時間換気システム/駐車場2台分/人感センサー付照明/火災警報器(報知機)/ダウンライト/フットライト/周辺交通量少なめ/整形地/閑静な住宅街/浄水器/温水洗浄便座/洗髪洗面化粧台/バス1坪以上/シューズボックス/TVモニター付きインターホン/ディンプルキー/防犯カメラ/ダブルロックドア/角地
《物件の特徴》:-
備考
《その他》:施工会社(フレンドリーハウス(株)) / 販売戸数:1戸 / 地勢:平坦 / 国土法届出:不要 / 設備保証:利用可
※詳細については、Webサイトにてご確認ください。現状と異なる場合は、現状を優先させていただきます。
※取引態様の欄に「媒介」と表示された物件は「仲介物件」です。ご成約の際には仲介手数料を申し受けます。
情報更新日|2026年4月27日
次回更新予定|2026年5月11日