4,499万円
3LDK
種別 戸建て
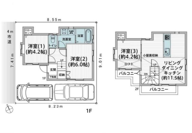
建物面積 60.38㎡(壁芯)
おすすめ
ポイント
駐車2台可能の3LDK 生活施設充実の閑静な住環境
小学校徒歩10分圏内 子育てに優しい明るい2階建て住宅
リフォーム済で即入居可 利便性と快適性が整う住まい
調布・三鷹へバス便良好 収納豊富なロフト・小屋裏付き
| 築年月 | 2017年6月 |
|---|---|
| 構造 | 木造 |
| 階数 | 2階建て |
| 土地面積 | 75.62㎡ (22.87坪) |
| 駐車スペース | 駐車場あり( 2台) |
| 都市計画 | 市街化区域 |
| 用途地域 | 第一種低層住居専用地域 |
| 建蔽率/容積率 | 40% / 80% |
| 地目 | 宅地 |
| 区画整理 | - |
| 接道 | 西側4.0m公道に7.4m接道 |
| 私道 | なし |
| 権利 | 所有権 |
| 借地権 | - |
| 現況 | 空室(入居歴有) |
| 引渡時期 | 相談 |
| 引渡条件 | 相談 |
| 取引態様 | 媒介 |
| 管理コード | AJP400030 |
設備・特記
《設備》:陽当り良好/上水道/内装リフォーム/下水道/カウンターキッチン/クローゼット/浴室暖房/システムキッチン/追い焚き風呂/3口コンロ/浴室乾燥機/バルコニー/24時間換気システム/駐車場2台分/都市ガス/整形地/南向き/閑静な住宅街/浄水器/全居室収納/温水洗浄便座/洗髪洗面化粧台/食器洗浄乾燥機/全居室フローリング/TVモニター付きインターホン/全室南向き
《物件の特徴》:-
備考
《その他》:販売戸数:1戸 / 地勢:平坦 / 国土法届出:不要
※詳細については、Webサイトにてご確認ください。現状と異なる場合は、現状を優先させていただきます。
※取引態様の欄に「媒介」と表示された物件は「仲介物件」です。ご成約の際には仲介手数料を申し受けます。
情報更新日|2025年12月10日
次回更新予定|2025年12月24日