12,200万円
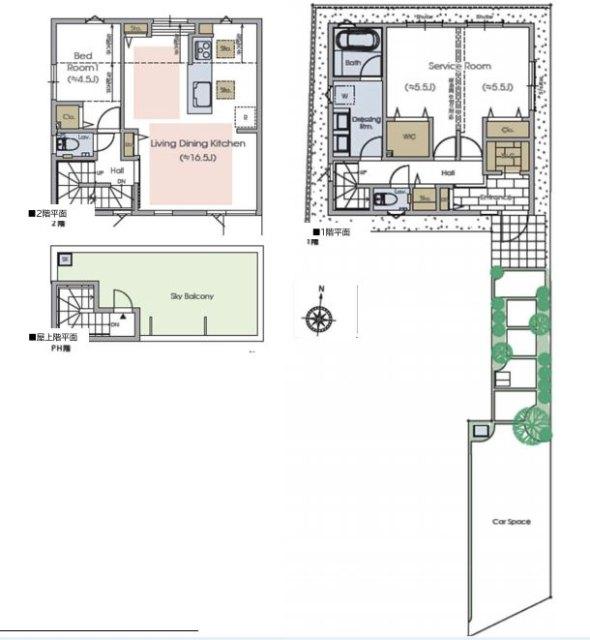
1SLDK
種別 戸建て
建物面積 90.66㎡(壁芯)
おすすめ
ポイント
☆東急田園都市線【用賀】駅徒歩15分☆
☆モデル家具付き物件(11月末まで)☆
☆開放性のあるスカイバルコニー付きでスロップシンク付き☆
☆風情ある緑地帯広がる瀬田アドレス☆
| 築年月 | 2025年6月 |
|---|---|
| 構造 | 木造 |
| 階数 | 2階建て |
| 土地面積 | 95.20㎡ (28.79坪) |
| 駐車スペース | 駐車場あり( 1台) |
| 都市計画 | |
| 用途地域 | 第一種低層住居専用地域 |
| 建蔽率/容積率 | 50% / 100% |
| 地目 | 宅地 |
| 区画整理 | - |
| 接道 | 南側6.0m公道に接道 |
| 私道 | なし |
| 権利 | 所有権 |
| 借地権 | - |
| 現況 | 空室(入居歴無) |
| 引渡時期 | 即時 |
| 引渡条件 | |
| 取引態様 | 媒介 |
| 管理コード | AJR400062 |
設備・特記
《設備》:上水道/フラット35S適合・利用可/小学校徒歩10分以内/複層ガラス/下水道/開発分譲地内/カウンターキッチン/クローゼット/システムキッチン/追い焚き風呂/3口コンロ/浴室乾燥機/バルコニー/照明器具/都市ガス/LDK15畳以上/閑静な住宅街/2面採光/納戸/浄水器/全居室収納/トイレ2ヶ所/温水洗浄便座/洗髪洗面化粧台/食器洗浄乾燥機/床下収納/シューズインクローゼット/バス1坪以上/ウォークインクローゼット/全居室フローリング/TVモニター付きインターホン
《物件の特徴》:☆東急田園都市線【用賀】駅徒歩15分☆
備考
《その他》:施工会社(トーセイ(株)) / 販売戸数:2戸 / 地勢:平坦 / 国土法届出:不要
《建築確認番号》:第TKC24建確東8238号
※詳細については、Webサイトにてご確認ください。現状と異なる場合は、現状を優先させていただきます。
※取引態様の欄に「媒介」と表示された物件は「仲介物件」です。ご成約の際には仲介手数料を申し受けます。
情報更新日|2025年10月24日
次回更新予定|2025年11月10日