9,980万円
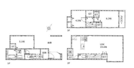
2SLDK
種別 戸建て
建物面積 102.86㎡(壁芯)
おすすめ
ポイント
☆中央線「荻窪」駅徒歩11分☆
☆解放感のある採光あふれる2階リビング☆
☆駐車のしやすい前面6m公道☆
☆広々駐車場で大型車も駐車可能☆
| 築年月 | 2025年7月 |
|---|---|
| 構造 | 木造 |
| 階数 | 3階建て |
| 土地面積 | 60.29㎡ (18.23坪) |
| 駐車スペース | 駐車場あり( 1台) |
| 都市計画 | 市街化区域 |
| 用途地域 | 第一種中高層住居専用地域 |
| 建蔽率/容積率 | 60% / 200% |
| 地目 | 宅地 |
| 区画整理 | - |
| 接道 | 北東側5.5m公道に5.9m接道 |
| 私道 | なし |
| 権利 | 所有権 |
| 借地権 | - |
| 現況 | 空室(入居歴無) |
| 引渡時期 | 即時 |
| 引渡条件 | |
| 取引態様 | 媒介 |
| 管理コード | AJR400071 |
設備・特記
《設備》:都市ガス/上水道/複層ガラス/下水道/クローゼット/浄水器/トイレ2ヶ所/温水洗浄便座/浴室暖房/食器洗浄乾燥機/システムキッチン/追い焚き風呂/3口コンロ/浴室乾燥機/バルコニー/LDK18畳以上/ビルトインガレージ
《物件の特徴》:☆中央線「荻窪」駅徒歩11分☆
備考
《その他》:販売戸数:1戸 / 国土法届出:不要
《建築確認番号》:第24UDI1C建08310号
※詳細については、Webサイトにてご確認ください。現状と異なる場合は、現状を優先させていただきます。
※取引態様の欄に「媒介」と表示された物件は「仲介物件」です。ご成約の際には仲介手数料を申し受けます。
情報更新日|2025年10月26日
次回更新予定|2025年11月10日