2,800万円
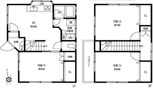
3DK
種別 戸建て
建物面積 63.91㎡(壁芯)
おすすめ
ポイント
☆2025年11月新規フルリフォーム住宅☆
☆近隣施設充実の住環境☆
☆京急本線『立会川駅』徒歩5分☆
☆複数路線利用可能☆
| 築年月 | 1982年10月 |
|---|---|
| 構造 | 木造 |
| 階数 | 2階建て |
| 土地面積 | 57.35㎡ (17.34坪) |
| 駐車スペース | - |
| 都市計画 | |
| 用途地域 | 準工業地域 |
| 建蔽率/容積率 | 60% / 200% |
| 地目 | 宅地 |
| 区画整理 | - |
| 接道 | 南東側4.0m私道に2.0m接道/位置指定道路:あり |
| 私道 | 私道負担面積:11.35㎡ |
| 権利 | 賃借権 |
| 借地権 | - |
| 現況 | 空室(入居歴有) |
| 引渡時期 | 相談 |
| 引渡条件 | |
| 取引態様 | 媒介 |
| 管理コード | AJR400128 |
設備・特記
《設備》:エアコン/内装リフォーム/全室2面採光/2面採光/クローゼット/浄水器/全居室収納/温水洗浄便座/浴室暖房/洗髪洗面化粧台/システムキッチン/床下収納/追い焚き風呂/3口コンロ/浴室乾燥機/バルコニー/照明器具/全居室フローリング
《物件の特徴》:☆2025年11月新規フルリフォーム住宅☆
備考
《その他》:販売戸数:1戸 / 国土法届出:不要
※詳細については、Webサイトにてご確認ください。現状と異なる場合は、現状を優先させていただきます。
※取引態様の欄に「媒介」と表示された物件は「仲介物件」です。ご成約の際には仲介手数料を申し受けます。
情報更新日|2025年11月16日
次回更新予定|2025年11月30日