3,199万円
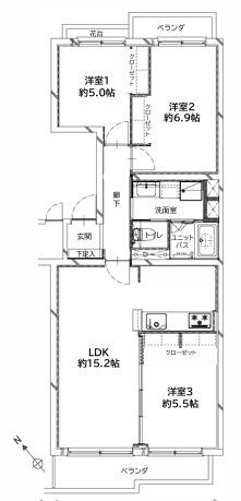
3LDK
種別 マンション
専有面積 72.61㎡(壁芯)
おすすめ
ポイント
☆2面ベランダに付き陽当り・風通り良好☆
☆閑静な住環境・2025年12月大規模修繕実施済☆
☆オーダーメイド品質のこだわり空間☆
☆高品質・細部へのこだわり・ずっと過ごしたくなる空間☆
| 築年月 | 1980年3月 |
|---|---|
| 構造 | 鉄筋コンクリート造 |
| 所在階 | 4階建ての3階 |
| 総戸数 | 22戸 |
| 向き | 南西 |
| バルコニー面積 | 8.25㎡ |
| 駐車場 | 空き無し |
| 施工会社 | 東急建設(株) |
| 管理会社 | 株式会社合人社計画研究所 |
| 管理形態 | 全部委託(日勤) |
| 権利 | 所有権 |
| 借地権 | - |
| 現況 | 空室(入居歴有) |
| 引渡時期 | 相談 |
| 引渡条件 | |
| 管理費 | 14,890円/月 |
| 修繕積立金 | 15,440円/月 |
| 取引態様 | 媒介 |
| 管理コード | AJR400217 |
設備・特記
《設備》:陽当り良好/通風良好/スーパー徒歩10分以内/内装リフォーム/室内洗濯機置場/小学校徒歩10分以内/外装リフォーム/クローゼット/収納スペース/システムキッチン/追い焚き風呂/3口コンロ/浴室乾燥機/バルコニー/照明器具/バルコニー2面以上/ペット不可/LDK15畳以上/浄水器/全居室収納/温水洗浄便座/洗髪洗面化粧台/食器洗浄乾燥機/全居室フローリング/TVモニター付きインターホン
《物件の特徴》:☆2面ベランダに付き陽当り・風通り良好☆【当日のご案内OK!】0120-300-464
備考
《その他》:施工会社(東急建設(株)) / 管理会社(株式会社合人社計画研究所) / 販売戸数:1戸 / 管理組合:あり / 国土法届出:不要
※詳細については、Webサイトにてご確認ください。現状と異なる場合は、現状を優先させていただきます。
※取引態様の欄に「媒介」と表示された物件は「仲介物件」です。ご成約の際には仲介手数料を申し受けます。
情報更新日|2026年1月16日
次回更新予定|2026年1月31日