8,880万円
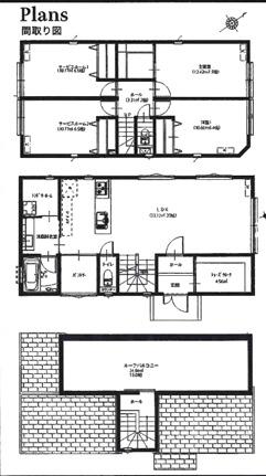
4LDK
種別 戸建て
建物面積 124.09㎡(壁芯)
おすすめ
ポイント
☆車2台分駐車可能・大型ルーフバルコニー☆
☆大型収納スペース・ランドリールーム完備☆
☆家事動線にこだわった、暮らしを快適にする間取り設計☆
☆開放感あふれるルーフバルコニーは心地よい時間を楽しめます☆
| 築年月 | 2026年6月 |
|---|---|
| 構造 | 木造 |
| 階数 | 2階建て |
| 土地面積 | 172.98㎡ (52.32坪) |
| 駐車スペース | 駐車場あり( 2台) |
| 都市計画 | 市街化区域 |
| 用途地域 | 第一種低層住居専用地域 |
| 建蔽率/容積率 | 50% / 100% |
| 地目 | 宅地 |
| 区画整理 | - |
| 接道 | 南東側4.0m公道に18.6m接道 |
| 私道 | なし |
| 権利 | 所有権 |
| 借地権 | - |
| 現況 | 未完成 |
| 引渡時期 | 相談 |
| 引渡条件 | |
| 取引態様 | 媒介 |
| 管理コード | AJR400232 |
設備・特記
《設備》:2階建/2沿線以上利用可/上水道/床暖房/フローリング/複層ガラス/下水道/クローゼット/システムキッチン/追い焚き風呂/浴室乾燥機/LDK20畳以上/バルコニー/24時間換気システム/駐車場2台分/ルーフバルコニー/都市ガス/閑静な住宅街/パントリー/浄水器/全居室収納/トイレ2ヶ所/温水洗浄便座/食器洗浄乾燥機/TVモニター付きインターホン
《物件の特徴》:☆車2台分駐車可能・大型ルーフバルコニー☆【当日のご案内OK!】0120-300-464
備考
《その他》:販売戸数:1戸 / 国土法届出:不要
《建築確認番号》:第25KAK建確02317号
※詳細については、Webサイトにてご確認ください。現状と異なる場合は、現状を優先させていただきます。
※取引態様の欄に「媒介」と表示された物件は「仲介物件」です。ご成約の際には仲介手数料を申し受けます。
情報更新日|2026年1月27日
次回更新予定|2026年2月10日