3,480万円
3LDK
種別 戸建て
建物面積 103.00㎡(壁芯)
おすすめ
ポイント
オール電化で快適な、八街での暮らし。未入居戸建てです♪
JR八街駅より徒歩9分。周辺施設充実、自然も豊かで住みやすい。
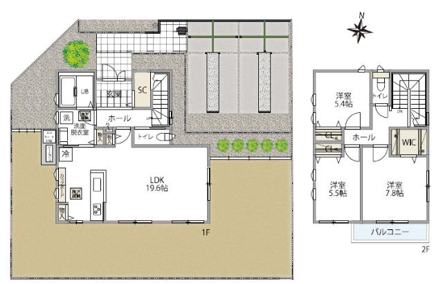
家族や親戚、友人を呼んでもゆったりスペースのリビング19・6帖
2階プライベートルームは家族それぞれの収納スペースあり。
| 築年月 | 2023年2月 |
|---|---|
| 構造 | 木造 |
| 階数 | 2階建て |
| 土地面積 | 198.04㎡ (59.90坪) |
| 駐車スペース | 駐車場あり( 2台) |
| 都市計画 | 非線引区域 |
| 用途地域 | 第一種住居地域 |
| 建蔽率/容積率 | 60% / 200% |
| 地目 | 宅地 |
| 区画整理 | - |
| 接道 | 北側6.0m公道に接道/西側6.0m公道に接道 |
| 私道 | なし |
| 権利 | 所有権 |
| 借地権 | - |
| 現況 | 空室(入居歴無) |
| 引渡時期 | 相談 |
| 引渡条件 | |
| 取引態様 | 媒介 |
| 管理コード | AL400209 |
設備・特記
《設備》:陽当り良好/上水道/前道6m以上/小学校徒歩10分以内/下水道/クローゼット/庭/浴室暖房/システムキッチン/IHコンロ/追い焚き風呂/3口コンロ/浴室乾燥機/バルコニー/照明器具/LDK18畳以上/24時間換気システム/駐車場2台分/高気密高断熱住宅/エアコン/区画整理地内/南向き/オール電化/閑静な住宅街/トイレ2ヶ所/スマートキー/温水洗浄便座/洗髪洗面化粧台/食器洗浄乾燥機/床下収納/バス1坪以上/ウォークインクローゼット/全居室フローリング/TVモニター付きインターホン/角地
《物件の特徴》:オール電化で快適な、八街での暮らし。未入居戸建てです♪
備考
《その他制限》:道路斜線制限、隣地斜線制限、日影制限、敷地面積の制限採点150㎡、他
《その他》:施工会社((株)ヤマダホームズ) / 販売戸数:1戸 / 国土法届出:不要
※詳細については、Webサイトにてご確認ください。現状と異なる場合は、現状を優先させていただきます。
※取引態様の欄に「媒介」と表示された物件は「仲介物件」です。ご成約の際には仲介手数料を申し受けます。
情報更新日|2025年11月15日
次回更新予定|2025年12月2日