4,990万円
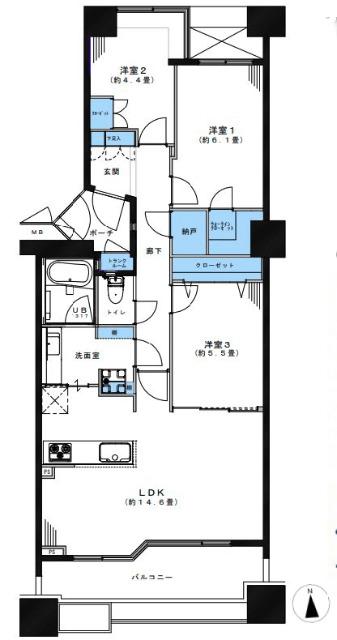
3LDK
種別 マンション
専有面積 73.91㎡(壁芯)
おすすめ
ポイント
閑静なエリアで大規模レジデンスでの暮らしを!
エレベーター停止階(1・3・6・9Fに停止)南向きの3階!
収納スペースが充実!ペット飼育可能(細則あり)♪
陽当たり・眺望・通風良好♪スーパー・コンビニ徒歩近辺にあり♪
| 築年月 | 1999年7月 |
|---|---|
| 構造 | 鉄骨鉄筋コンクリート造 |
| 所在階 | 11階建ての3階 |
| 総戸数 | 240戸 |
| 向き | 南 |
| バルコニー面積 | 9.47㎡ |
| 駐車場 | 駐車場有り 1,500円/月 |
| 施工会社 | 戸田建設(株) |
| 管理会社 | 株式会社日建ハウジングシステム |
| 管理形態 | 全部委託(日勤) |
| 権利 | 所有権 |
| 借地権 | - |
| 現況 | 空室(入居歴有) |
| 引渡時期 | 相談 |
| 引渡条件 | |
| 管理費 | 12,600円/月 |
| 修繕積立金 | 13,200円/月 |
| 取引態様 | 媒介 |
| 管理コード | AP400143 |
設備・特記
《設備》:陽当り良好/温水洗浄便座/都市ガス/トランクルーム/南向き/ウォークインクローゼット/カウンターキッチン/クローゼット/エレベータ/ペット対応/オートロック
《物件の特徴》:-
備考
《その他月額費用》:要確認:200円
《その他》:施工会社(戸田建設(株)) / 管理会社(株式会社日建ハウジングシステム) / 販売戸数:1戸 / 備考:旧分譲会社:住友不動産(株) / 用途地域:第一種住居地域 / 国土法届出:不要
※詳細については、Webサイトにてご確認ください。現状と異なる場合は、現状を優先させていただきます。
※取引態様の欄に「媒介」と表示された物件は「仲介物件」です。ご成約の際には仲介手数料を申し受けます。
情報更新日|2026年2月20日
次回更新予定|2026年3月19日