3,980万円
2SLDK
種別 戸建て
建物面積 109.72㎡(壁芯)
おすすめ
ポイント
R7年6月室内リフォーム施工済!新築戸建てのように綺麗な住まい
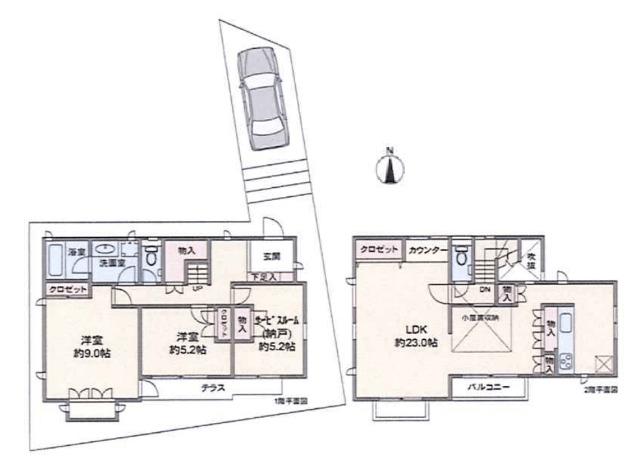
2階LDKは約23帖の広さで、家族皆様ゆったりと過ごせる空間
屋根裏収納庫含め収納スペースも充実
阪急箕面線「牧落」駅徒歩12分の生活しやすい立地です♪
| 築年月 | 1990年9月 |
|---|---|
| 構造 | 木造 |
| 階数 | 2階建て |
| 土地面積 | 115.10㎡ (34.81坪) |
| 駐車スペース | 駐車場あり( 1台) |
| 都市計画 | 市街化区域 |
| 用途地域 | 第一種低層住居専用地域 |
| 建蔽率/容積率 | 60% / 150% |
| 地目 | 宅地 |
| 区画整理 | - |
| 接道 | 北側6.6m公道に2.8m接道 |
| 私道 | なし |
| 権利 | 所有権 |
| 借地権 | - |
| 現況 | 空室(入居歴有) |
| 引渡時期 | 相談 |
| 引渡条件 | |
| 取引態様 | 媒介 |
| 管理コード | AYA400626 |
設備・特記
《設備》:陽当り良好/通風良好/上水道/内装リフォーム/浴室に窓/クローゼット/テラス/システムキッチン/3口コンロ/LDK20畳以上/バルコニー/LDK18畳以上/都市ガス/南向き/LDK15畳以上/閑静な住宅街/緑豊かな住宅地/納戸/全居室収納/トイレ2ヶ所/温水洗浄便座/洗髪洗面化粧台/シューズボックス/全居室フローリング/全室南向き
《物件の特徴》:-
備考
※詳細については、Webサイトにてご確認ください。現状と異なる場合は、現状を優先させていただきます。
※取引態様の欄に「媒介」と表示された物件は「仲介物件」です。ご成約の際には仲介手数料を申し受けます。
情報更新日|2025年12月29日
次回更新予定|2026年1月16日