1,980万円
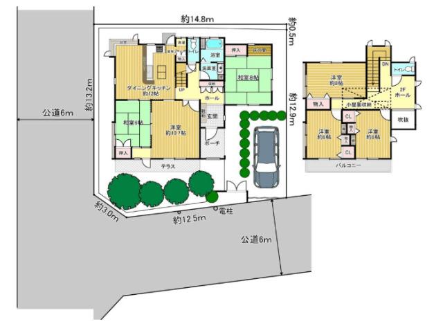
6DK
種別 戸建て
建物面積 146.59㎡(壁芯)
おすすめ
ポイント
約63.5坪のゆったりとした土地を持つ全居室6帖以上の6DK!
南西角地のため開放感もあり、陽当たり・通風も良好です♪
小中学校徒歩10分以内のためお子様の通学も安心♪
小屋裏収納など豊富な収納スペースがありお部屋もより快適に♪
| 築年月 | 1986年6月 |
|---|---|
| 構造 | 木造 |
| 階数 | 2階建て |
| 土地面積 | 210.09㎡ (63.55坪) |
| 駐車スペース | 駐車場あり( 1台) |
| 都市計画 | 市街化区域 |
| 用途地域 | 第一種低層住居専用地域 |
| 建蔽率/容積率 | 50% / 80% |
| 地目 | 宅地 |
| 区画整理 | - |
| 接道 | 南側6.0m公道に12.4m接道/西側6.0m公道に13.2m接道 |
| 私道 | なし |
| 権利 | 所有権 |
| 借地権 | - |
| 現況 | 空室(入居歴有) |
| 引渡時期 | 相談 |
| 引渡条件 | |
| 取引態様 | 媒介 |
| 管理コード | AYA400696 |
設備・特記
《設備》:陽当り良好/都市ガス/通風良好/上水道/和室/南向き/閑静な住宅街/全居室6畳以上/下水道/緑豊かな住宅地/浴室に窓/カウンターキッチン/クローゼット/トイレ2ヶ所/庭/テラス/洗面所独立/バルコニー/角地/南面バルコニー
《物件の特徴》:-
備考
《その他制限》:盛土規制法、法22条区、多田グリーンハイツ水明台地区地区計画
《その他》:販売戸数:1戸 / 地勢:平坦 / 国土法届出:不要
※詳細については、Webサイトにてご確認ください。現状と異なる場合は、現状を優先させていただきます。
※取引態様の欄に「媒介」と表示された物件は「仲介物件」です。ご成約の際には仲介手数料を申し受けます。
情報更新日|2025年11月10日
次回更新予定|2025年11月24日