2,160万円
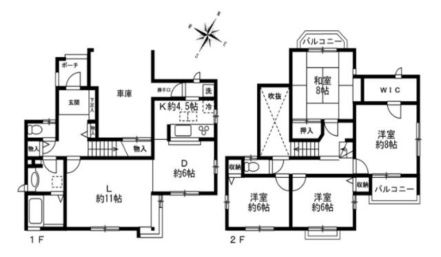
4LDK
種別 戸建て
建物面積 143.73㎡(壁芯)
おすすめ
ポイント
土地面積61坪超!広々敷地でゆとりのある中古一戸建。
中二階のある大空間の住まい!広々4LDKで開放的!
車庫スペース2台有り!お車をお持ちのご家族も安心。
「白金一丁目」停徒歩3分!利便性の良い立地です。
| 築年月 | 1999年11月 |
|---|---|
| 構造 | 木造 |
| 階数 | 2階建て |
| 土地面積 | 201.90㎡ (61.07坪) |
| 駐車スペース | 駐車場あり( 1台) |
| 都市計画 | 市街化区域 |
| 用途地域 | 第一種低層住居専用地域 |
| 建蔽率/容積率 | 50% / 80% |
| 地目 | 宅地 |
| 区画整理 | - |
| 接道 | 北側6.3m公道に接道/南側14.4m公道に接道 |
| 私道 | なし |
| 権利 | 所有権 |
| 借地権 | - |
| 現況 | 居住中 |
| 引渡時期 | 相談 |
| 引渡条件 | |
| 取引態様 | 媒介 |
| 管理コード | AYA400818 |
設備・特記
《設備》:陽当り良好/通風良好/上水道/下水道/浴室に窓/庭/テラス/システムキッチン/IHコンロ/LDK20畳以上/LDK18畳以上/駐車場2台分/バルコニー2面以上/整形地/和室/吹抜/LDK15畳以上/全室2面採光/閑静な住宅街/全居室6畳以上/緑豊かな住宅地/眺望良好/全居室収納/トイレ2ヶ所/洗髪洗面化粧台/洗面所独立/ウォークインクローゼット/東南向き
《物件の特徴》:-
備考
《その他制限》:猪名川パークタウン地区計画
《その他》:販売戸数:1戸 / 地勢:平坦 / 国土法届出:不要
※詳細については、Webサイトにてご確認ください。現状と異なる場合は、現状を優先させていただきます。
※取引態様の欄に「媒介」と表示された物件は「仲介物件」です。ご成約の際には仲介手数料を申し受けます。
情報更新日|2026年5月17日
次回更新予定|2026年5月31日