5,080万円
3LDK
種別 戸建て
建物面積 95.58㎡(壁芯)
おすすめ
ポイント
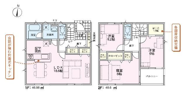
全棟住宅性能表示取得済み。品質と性能にこだわった新築分譲住宅。
地震に強い耐震等級3取得物件!陽当り良好で安心・快適な新生活。
広々3LDK+WICで収納も充実。家族皆様が快適に暮らせます♪
「石橋阪大前」駅徒歩12分。利便性と居住性を兼ね備えた住まい。
| 築年月 | 2026年4月 |
|---|---|
| 構造 | 木造 |
| 階数 | 2階建て |
| 土地面積 | 101.30㎡ (30.64坪) |
| 駐車スペース | 駐車場あり( 1台) |
| 都市計画 | 市街化区域 |
| 用途地域 | 第一種中高層住居専用地域 |
| 建蔽率/容積率 | 60% / 160% |
| 地目 | 宅地 |
| 区画整理 | - |
| 接道 | 北側4.0m私道に7.2m接道/西側4.0m私道に8.0m接道 |
| 私道 | 私道負担面積:144.31㎡(持分:1/7) |
| 権利 | 所有権 |
| 借地権 | - |
| 現況 | 未完成 |
| 引渡時期 | 相談 |
| 引渡条件 | |
| 取引態様 | 媒介 |
| 管理コード | AYA400821 |
設備・特記
《設備》:陽当り良好/通風良好/上水道/複層ガラス/下水道/浴室に窓/カウンターキッチン/クローゼット/浴室暖房/システムキッチン/浴室乾燥機/バルコニー/24時間換気システム/LDK18畳以上/南面バルコニー/都市ガス/南向き/LDK15畳以上/閑静な住宅街/緑豊かな住宅地/パントリー/全居室収納/浄水器/トイレ2ヶ所/洗髪洗面化粧台/温水洗浄便座/洗面所独立/床下収納/シューズボックス/ウォークインクローゼット/全居室フローリング/TVモニター付きインターホン/防犯カメラ
《物件の特徴》:-
備考
《その他制限》:法22条指定区域・宅地造成等工事規制区域
《その他》:販売戸数:3戸 / 備考:私道負担持分7分の1有(144.31㎡) / 地勢:平坦 / 国土法届出:不要
《建築確認番号》:第R07SHC124158号
※詳細については、Webサイトにてご確認ください。現状と異なる場合は、現状を優先させていただきます。
※取引態様の欄に「媒介」と表示された物件は「仲介物件」です。ご成約の際には仲介手数料を申し受けます。
情報更新日|2026年1月26日
次回更新予定|2026年2月13日