2,780万円
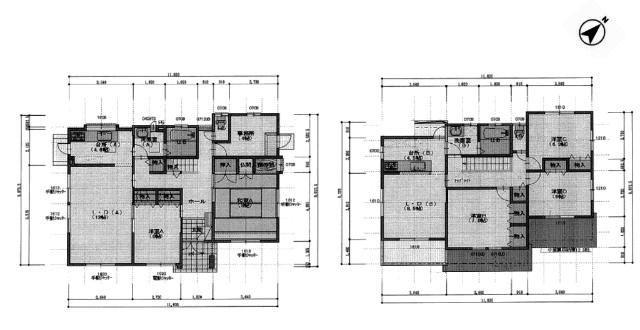
5SLDK
種別 戸建て
建物面積 168.69㎡(壁芯)
おすすめ
ポイント
阪急バス「南野坂」停徒歩4分。住友林業施工の2世帯住宅
家族全員がゆったり過ごせる全居室6帖以上。陽当たりも良好。
土地面積約63坪、建物面積約51坪の広々とした邸宅です。
緑豊かな閑静な街並み。落ち着いた環境で穏やかな暮らしを。
| 築年月 | 2003年12月 |
|---|---|
| 構造 | 木造 |
| 階数 | 2階建て |
| 土地面積 | 211.02㎡ (63.83坪) |
| 駐車スペース | 駐車場あり( 2台) |
| 都市計画 | 市街化区域 |
| 用途地域 | 第一種低層住居専用地域 |
| 建蔽率/容積率 | 50% / 80% |
| 地目 | 宅地 |
| 区画整理 | - |
| 接道 | 南東側6.3m公道に14.7m接道 |
| 私道 | なし |
| 権利 | 所有権 |
| 借地権 | - |
| 現況 | 空室(入居歴有) |
| 引渡時期 | 相談 |
| 引渡条件 | |
| 取引態様 | 媒介 |
| 管理コード | AYA400863 |
設備・特記
《設備》:陽当り良好/都市ガス/通風良好/上水道/和室/LDK15畳以上/閑静な住宅街/全居室6畳以上/下水道/緑豊かな住宅地/浴室に窓/全居室収納/トイレ2ヶ所/温水洗浄便座/洗面所独立/システムキッチン/IHコンロ/バルコニー/駐車場2台分/二世帯向き/南面バルコニー
《物件の特徴》:-
備考
《その他制限》:・建築基準法第22条指定区域・外壁後退:全周1m・高さ制限:10m ・景観法:市街地景観区域
《その他》:販売戸数:1戸 / 備考:※その他法令上の制限:宅地造成等工事規制区域、南野坂地区地区計画 ※南野坂地区地区計画の「低層住宅第2地区」に該当します。 最低敷地面積:150㎡等の制限があります。 ※売主の契約不適合免責 ※現状有姿取引(残置物無) / 地勢:平坦 / 国土法届出:不要
※詳細については、Webサイトにてご確認ください。現状と異なる場合は、現状を優先させていただきます。
※取引態様の欄に「媒介」と表示された物件は「仲介物件」です。ご成約の際には仲介手数料を申し受けます。
情報更新日|2026年3月23日
次回更新予定|2026年4月17日