6,850万円
4LDK
種別 戸建て
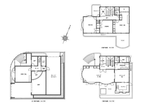
建物面積 278.04㎡(壁芯)
おすすめ
ポイント
278平米超の延床面積を誇る、格調高い木造2階地下1階建!
大理石を贅沢に使用した30帖超のLDが、上質な日常を演出♪
角地につき、陽当たりと通風に優れた開放感あふれる住環境です。
地下車庫には車4台から5台まで駐車可能!愛車家も納得の広さ。♪
| 築年月 | 2000年9月 |
|---|---|
| 構造 | 木造 |
| 階数 | 2階建て |
| 土地面積 | 190.42㎡ (57.60坪) |
| 駐車スペース | 駐車場あり( 4台) |
| 都市計画 | 市街化区域 |
| 用途地域 | 第一種低層住居専用地域 |
| 建蔽率/容積率 | 50% / 80% |
| 地目 | 宅地 |
| 区画整理 | - |
| 接道 | 西側6.3m公道に8.0m接道/北側6.0m公道に10.0m接道 |
| 私道 | なし |
| 権利 | 所有権 |
| 借地権 | - |
| 現況 | 空室(入居歴有) |
| 引渡時期 | 即時 |
| 引渡条件 | |
| 取引態様 | 媒介 |
| 管理コード | AYA400929 |
設備・特記
《設備》:陽当り良好/都市ガス/通風良好/上水道/南向き/LDK15畳以上/閑静な住宅街/全居室6畳以上/下水道/緑豊かな住宅地/浴室に窓/クローゼット/トイレ2ヶ所/洗面所独立/シューズインクローゼット/LDK20畳以上/バルコニー/LDK18畳以上/全居室フローリング/駐車場2台分/バルコニー2面以上/駐車場3台分/全室南向き/南面バルコニー
《物件の特徴》:-
備考
《その他制限》:法22条区域、景観法、宅地造成工事規制区域、湯山台地区地区計画、近郊緑地保全区域
《その他》:販売戸数:1戸 / 備考:JIO既存住宅かし保証保険付(引渡しから5年間1000万円) / 地勢:平坦 / 国土法届出:不要
※詳細については、Webサイトにてご確認ください。現状と異なる場合は、現状を優先させていただきます。
※取引態様の欄に「媒介」と表示された物件は「仲介物件」です。ご成約の際には仲介手数料を申し受けます。
情報更新日|2026年3月23日
次回更新予定|2026年4月6日