4,580万円
4LDK
種別 戸建て
建物面積 108.54㎡(壁芯)
おすすめ
ポイント
2025年12月完成の新築物件!充実の最新設備が揃います♪
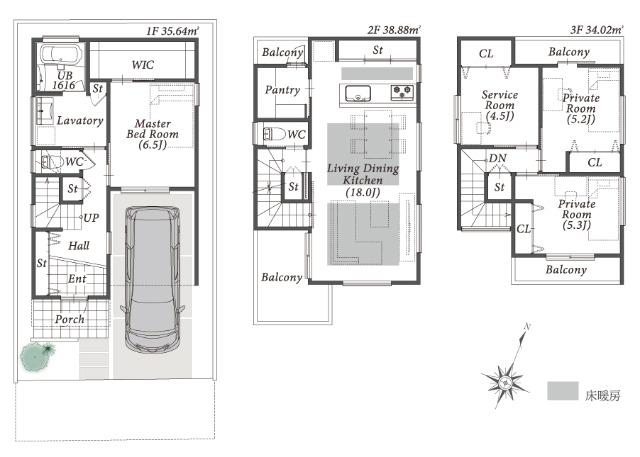
約18帖の広大なLDKが魅力!家族団らんを楽しめる間取りです♪
WICやパントリー付き!各居室に収納がある機能的な4LDK。
阪急石橋阪大前駅まで徒歩9分!通勤通学に便利な好立地です♪
| 築年月 | 2025年12月 |
|---|---|
| 構造 | 木造 |
| 階数 | 3階建て |
| 土地面積 | 78.36㎡ (23.70坪) |
| 駐車スペース | 駐車場あり( 1台) |
| 都市計画 | 市街化区域 |
| 用途地域 | 第一種中高層住居専用地域 |
| 建蔽率/容積率 | 60% / 160% |
| 地目 | 宅地 |
| 区画整理 | - |
| 接道 | 南側4.0mに6.6m接道 |
| 私道 | 私道負担面積:13.0㎡ |
| 権利 | 所有権 |
| 借地権 | - |
| 現況 | 空室(入居歴無) |
| 引渡時期 | 相談 |
| 引渡条件 | |
| 取引態様 | 媒介 |
| 管理コード | AYA400956 |
設備・特記
《設備》:陽当り良好/通風良好/上水道/下水道/浴室に窓/クローゼット/浴室暖房/システムキッチン/追い焚き風呂/浴室乾燥機/バルコニー/LDK18畳以上/南面バルコニー/都市ガス/南向き/LDK15畳以上/閑静な住宅街/緑豊かな住宅地/パントリー/浄水器/全居室収納/トイレ2ヶ所/温水洗浄便座/洗髪洗面化粧台/洗面所独立/シューズボックス/ウォークインクローゼット/全居室フローリング/TVモニター付きインターホン
《物件の特徴》:-
備考
《その他制限》:第2種高度地区
《その他》:販売戸数:1戸 / 備考:■本物件は、原則として建物の建築・増築・改築はできませんが、建築基準法第43条第2項第2号の許可を受けた場合には、建物の建築・増築・改築が可能です。 / 地勢:平坦 / 国土法届出:不要
※詳細については、Webサイトにてご確認ください。現状と異なる場合は、現状を優先させていただきます。
※取引態様の欄に「媒介」と表示された物件は「仲介物件」です。ご成約の際には仲介手数料を申し受けます。
情報更新日|2026年4月9日
次回更新予定|2026年5月2日