4,590万円
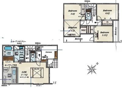
4LDK
種別 戸建て
建物面積 100.81㎡(壁芯)
おすすめ
ポイント
☆天井を高くしてリビングに開放感があります。
☆南面バルコニーで陽当たり良好です。二面バルコニーです。
☆各居室に収納あり、WICもあり収納豊富です。
☆お気軽にお問合せ下さい♪ローン相談もお気軽にどうぞ
| 築年月 | 2026年6月 |
|---|---|
| 構造 | 木造 |
| 階数 | 2階建て |
| 土地面積 | 168.91㎡ (51.09坪) |
| 駐車スペース | 駐車場あり( 2台) |
| 都市計画 | 市街化区域 |
| 用途地域 | 第一種低層住居専用地域 |
| 建蔽率/容積率 | 60% / 200% |
| 地目 | 宅地 |
| 区画整理 | - |
| 接道 | 北側4.5m公道に接道 |
| 私道 | なし |
| 権利 | 所有権 |
| 借地権 | - |
| 現況 | 未完成 |
| 引渡時期 | 2026年7月下旬予定 |
| 引渡条件 | |
| 取引態様 | 媒介 |
| 管理コード | CB400543 |
設備・特記
《設備》:上水道/下水道/カウンターキッチン/クローゼット/浴室暖房/システムキッチン/オートバス/追い焚き風呂/3口コンロ/浴室乾燥機/バルコニー/駐車場2台分/バルコニー2面以上/南面バルコニー/都市ガス/LDK15畳以上/パントリー/全居室収納/トイレ2ヶ所/温水洗浄便座/洗髪洗面化粧台/食器洗浄乾燥機/床下収納/ウォークインクローゼット/全居室フローリング/TVモニター付きインターホン
《物件の特徴》:☆天井を高くしてリビングに開放感があります。
備考
《その他制限》:景観法・航空法・宅地造成等規制法
《その他》:施工会社((株)東栄住宅) / 地勢:平坦 / 国土法届出:不要
《建築確認番号》:第07SHC127585号
※詳細については、Webサイトにてご確認ください。現状と異なる場合は、現状を優先させていただきます。
※取引態様の欄に「媒介」と表示された物件は「仲介物件」です。ご成約の際には仲介手数料を申し受けます。
情報更新日|2026年2月19日
次回更新予定|2026年3月7日