5,290万円
4LDK
種別 戸建て
建物面積 98.74㎡(壁芯)
おすすめ
ポイント
☆アウトドア用品等汚れを気にせず収納できる土間収納あります。
☆カースペース2台並列で駐車可です。
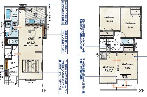
☆LDK18帖と広々です。
☆お気軽にお問合せ下さい。
| 築年月 | 2026年3月 |
|---|---|
| 構造 | 木造 |
| 階数 | 2階建て |
| 土地面積 | 104.36㎡ (31.56坪) |
| 駐車スペース | 駐車場あり( 2台) |
| 都市計画 | 市街化区域 |
| 用途地域 | 第一種中高層住居専用地域 |
| 建蔽率/容積率 | 60% / 200% |
| 地目 | 宅地 |
| 区画整理 | - |
| 接道 | 南西側6.0m公道に接道 |
| 私道 | なし |
| 権利 | 所有権 |
| 借地権 | - |
| 現況 | 未完成 |
| 引渡時期 | 2026年4月中旬予定 |
| 引渡条件 | |
| 取引態様 | 媒介 |
| 管理コード | CB400562 |
設備・特記
《設備》:陽当り良好/上水道/下水道/カウンターキッチン/クローゼット/浴室暖房/システムキッチン/オートバス/追い焚き風呂/3口コンロ/浴室乾燥機/バルコニー/LDK18畳以上/駐車場2台分/南面バルコニー/都市ガス/南向き/全居室収納/トイレ2ヶ所/温水洗浄便座/洗髪洗面化粧台/食器洗浄乾燥機/床下収納/バス1坪以上/TVモニター付きインターホン
《物件の特徴》:☆アウトドア用品等汚れを気にせず収納できる土間収納あります。
備考
《建築確認番号》:第07SHC120939
※詳細については、Webサイトにてご確認ください。現状と異なる場合は、現状を優先させていただきます。
※取引態様の欄に「媒介」と表示された物件は「仲介物件」です。ご成約の際には仲介手数料を申し受けます。
情報更新日|2026年3月17日
次回更新予定|2026年3月31日