4,280万円
3LDK
種別 戸建て
建物面積 102.05㎡(壁芯)
おすすめ
ポイント
☆全4棟分譲開始します。お好みの間取りは?
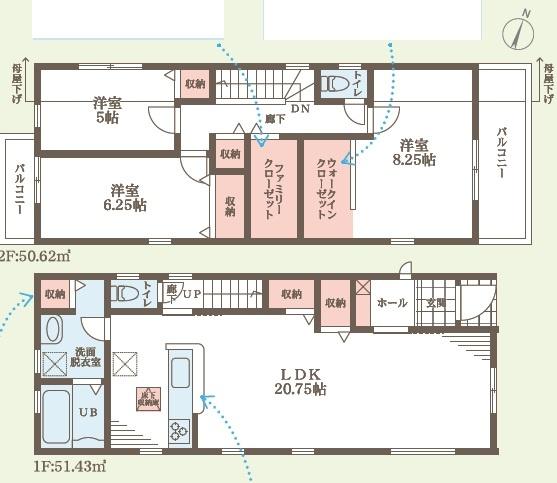
☆LDK20.75帖と広々です。南向きリビングで明るいです♪
☆駐車は2台並列で駐車可です。並列、便利ですよ〜
☆お気軽にお問合せ下さい。ローン相談(ネット銀行も可)お気軽に
| 築年月 | 2026年4月 |
|---|---|
| 構造 | 木造 |
| 階数 | 2階建て |
| 土地面積 | 125.46㎡ (37.95坪) |
| 駐車スペース | 駐車場あり( 2台) |
| 都市計画 | 市街化区域 |
| 用途地域 | 第一種中高層住居専用地域 |
| 建蔽率/容積率 | 60% / 200% |
| 地目 | 宅地 |
| 区画整理 | - |
| 接道 | 北東側4.9m公道に5.8m接道/北西側4.8m公道に6.0m接道 |
| 私道 | なし |
| 権利 | 所有権 |
| 借地権 | - |
| 現況 | 未完成 |
| 引渡時期 | 2026年5月中旬予定 |
| 引渡条件 | |
| 取引態様 | 媒介 |
| 管理コード | CB400566 |
設備・特記
《設備》:陽当り良好/上水道/フラット35S適合・利用可/下水道/カウンターキッチン/クローゼット/システムキッチン/追い焚き風呂/3口コンロ/浴室乾燥機/バルコニー/LDK20畳以上/24時間換気システム/駐車場2台分/都市ガス/長期優良住宅/性能評価書取得/設計住宅性能評価書/全室2面採光/浄水器/全居室収納/トイレ2ヶ所/温水洗浄便座/洗髪洗面化粧台/床下収納/ウォークインクローゼット/TVモニター付きインターホン
《物件の特徴》:☆全4棟分譲開始します。お好みの間取りは?
備考
《その他》:販売戸数:4戸 / 地勢:平坦 / 国土法届出:不要
《建築確認番号》:第07SHC126436号
※詳細については、Webサイトにてご確認ください。現状と異なる場合は、現状を優先させていただきます。
※取引態様の欄に「媒介」と表示された物件は「仲介物件」です。ご成約の際には仲介手数料を申し受けます。
情報更新日|2026年5月16日
次回更新予定|2026年6月1日