2,488万円
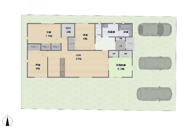
4LDK
種別 戸建て
建物面積 98.82㎡(壁芯)
おすすめ
ポイント
【4号棟】スーパー・コンビニ徒歩圏内!人気の平屋建て新築住宅!
全29区画の大型分譲地内!幼稚園も近く、送迎安心です!
敷地広々約80坪!来客時にも便利な、ゆったり駐車スペース!
南庭で日当たり良好!2帖のWICで家族のお洋服もまとめて収納!
| 築年月 | 2025年11月 |
|---|---|
| 構造 | 木造 |
| 階数 | 1階建て |
| 土地面積 | 266.43㎡ (80.59坪) |
| 駐車スペース | 駐車場あり( 3台) |
| 都市計画 | 市街化調整区域 |
| 用途地域 | 無指定 |
| 建蔽率/容積率 | 50% / 100% |
| 地目 | 宅地 |
| 区画整理 | - |
| 接道 | 東側6.0m公道に12.8m接道 |
| 私道 | なし |
| 権利 | 所有権 |
| 借地権 | - |
| 現況 | 未完成 |
| 引渡時期 | 2025年11月下旬予定 |
| 引渡条件 | |
| 取引態様 | 媒介 |
| 管理コード | CR400191 |
設備・特記
《設備》:陽当り良好/土地50坪以上/通風良好/制震構造/BELS/省エネ基準適合/上水道/電気/前道6m以上/スーパー徒歩10分以内/フラット35S適合・利用可/複層ガラス/開発分譲地内/カウンターキッチン/クローゼット/追い焚き風呂/3口コンロ/浴室乾燥機/LDK18畳以上/24時間換気システム/火災警報器(報知機)/駐車場3台分/ダウンライト/都市ガス/性能評価書取得/和室/設計住宅性能評価書/浄化槽/閑静な住宅街/全居室収納/温水洗浄便座/洗髪洗面化粧台/床下収納/バス1坪以上/シューズボックス/TVモニター付きインターホン/防犯カメラ
《物件の特徴》:-
備考
《その他制限》:法22条区域
《その他》:販売戸数:8戸 / 地勢:平坦 / 国土法届出:不要
《建築確認番号》:第25UDI1W建04089号
※詳細については、Webサイトにてご確認ください。現状と異なる場合は、現状を優先させていただきます。
※取引態様の欄に「媒介」と表示された物件は「仲介物件」です。ご成約の際には仲介手数料を申し受けます。
情報更新日|2025年10月20日
次回更新予定|2025年11月9日